6

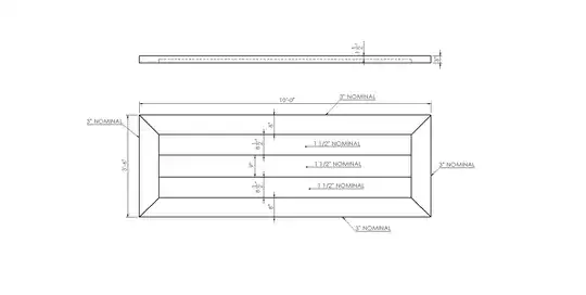
I'm going to build a large table and my customer wants the top 3" thick. My plan is to use wide boards(8"+). So I have some concern about cupping but figure that might not be as much of an issue with 3" thick stock.

My main question is this. I plan to use 1 1/2" nominal boards in the middle of the table to reduce weight and material costs. If I miter a frame around the thinner boards with the 3" stock and join/glue it all together, will the thinner boards expand/contract at a different rate and cause the top to crack or warp?.

Planning on using a hardwood like Oak/Mahogany.

I've attached a drawing of the top for reference

enter image description here

enter image description here

Chris Heichel
  • 207
  • 1
  • 5

2 Answers2

3

My main question is this. I plan to use 1 1/2" nominal boards in the middle of the table to reduce weight and material costs. If I miter a frame around the thinner boards with the 3" stock and join/glue it all together, will the thinner boards expand/contract at a different rate and cause the top to crack or warp?.

Thinner and thicker boards expand equally pretty much, for any given type of board (rift, QS or flat-sawn). The issue with this isn't differential movement, it's movement period.

Let me pass on verbatim a piece of advice from a pro that I read a couple of years back:
resist the urge to picture-frame a tabletop.

There's nearly no way to get this to work properly with the glued-up centre panel. You could just about get away with it using the right wood (QS mesquite being a rare example) but with most other woods you're asking for trouble and both oak and mahogany (all types) are no exception.

At maximum expansion the central boards will have no problem at all breaking apart two or more of the mitre joints, even if they're reinforced with biscuits, splines or Dominos.

If you managed to secure the mitres somehow so that they couldn't be broken open (e.g. by using metal fixings) the central panel will be put under enormous strain when it tries to expand but can't, and the result then is warping and/or cracking.

Getting the look without the drama
Probably the best way to do this is using plywood or another board material for the central panel, with veneer applied if necessary.

Graphus
  • 65,691
  • 3
  • 50
  • 139
  • 1
    Great information. I have had a table top crack that was mitered before. I suggested to use a breadboard end style design instead of the picture frame style. I like the suggestion of using plywood in the middle, with a veneer. – Chris Heichel Jan 06 '17 at 16:20
  • Agree completely with the answer. But you could pull it off if you floated the interior panel within the picture frame. (Bad thing there being cracks between...) – Aloysius Defenestrate Jan 06 '17 at 16:28
  • I added a picture to the original post of an example my customer gave me. Looks like a very old table using a similar design. It looks like solid wood to me and I don't see how it hasn't cracked out the miters. @AloysiusDefenestrate how would I float the middle panel? – Chris Heichel Jan 06 '17 at 16:31
  • 2
    That looks more like a newly built table made to look 'old' or 'rustic' using possibly reclaimed materials, but I could be wrong. – Jacob Edmond Jan 06 '17 at 16:39
  • "Floating the middle panel" would be building the table like any other frame/panel assembly: groove the picture frame and half-lap a tongue on the center. (Poor descriptive words, I know. Refer to this pic: http://www.woodsmithtips.com/2010/09/02/glue-solid-wood-frame-panel/ ) – Aloysius Defenestrate Jan 06 '17 at 16:39
  • @AloysiusDefenestrate Yes of course you could float the central panel, in theory, but a table isn't a cupboard door. For a start the requirement for an unbroken flat panel (no grooves or gaps) would kill the idea at the outset, but also the scale of the thing is key. Hard to make a door with a central panel 24" wide, much easier to make one with two floating panels each 12" wide because while their respective movements total to the same number they only need to be taken care of separately (if that makes any sense) – Graphus Jan 06 '17 at 16:46
  • @ChrisHeichel You'd want to see the underside to guess at how that example table is made. I bet it's not what it looks like at first glance. like. The top boards could be resawn wood of say 1/4" thickness laminated to a plywood or MDF or chipboard/particleboard substrate, or it could be pieced together just from plywood. Either one of those would be the most common commercial solutions to a table design of this type today, but veneering is the 'proper' way to do it. – Graphus Jan 06 '17 at 16:52
  • @Graphus -- as almost always, I agree with you. 2 panels would be much better from an expansion perspective. I'll let the OP decide if an unbroken surface is a requirement, as that wasn't explicitly stated one way or another. If you imagine this less as a cupboard door and more of an entry door, then the plan might make more sense. And not to beat a dead horse, but I'd (1) avoid the design, and (2) if I had to picture frame, I'd veneer. I was just throwing ideas that would allow the use of lumber, if the OP was set on it. – Aloysius Defenestrate Jan 06 '17 at 17:35
0

One way to get something like the picture frame look would be breadboard ends (good practice for keeping a tabletop flat anyway), possibly with some decorative treatment of them and the outermost panel boards to make them "read" as a frame. (Eg, shadow lines where they meet the central area.) You'd lose the miters, but the overall feel of the piece would be similar.

Another solution would be to build the central area out of plywood or MDF with appropriate veneer -- dimensionally stable -- with solid-wood mitered edging. That would mean only the edging moves with humidity, and since it's of equal thickness all the way around there is no strain on the miters. Note that this also lets the table edge be thicker than the middle, making the table appear more massive (and helping to stiffen it) while keeping weight and cost of the project lower.

keshlam
  • 9,191
  • 3
  • 21
  • 43