Catedrala Mântuirii Neamului
| Catedrala Mântuirii Neamului | |
![]() Catedrala Mântuirii Neamului, aprilie 2025 | |
| Informații generale | |
|---|---|
| Confesiune | Biserica Ortodoxă Română |
| Hram | „Înălțarea Domnului” „Sfântul Apostol Andrei” |
| Tip | catedrală |
| Țara | România |
| Localitate | București Calea 13 septembrie, sect. 5 |
| Coordonate | 44° 25′ 33.26″ N / 26° 04′ 56.38″ E |
| Date despre construcție | |
| Stil arhitectonic | neobizantin |
| Înălțime maximă | 127 m[1] |
| Istoric | |
| Perioadă construcție | 2010 - 2025 (estimare) |
| Localizare | |
| Prezență online | |
| https://catedrala-nationala.ro/ | |
.jpg)
.jpg)
Catedrala Mântuirii Neamului, cu hramul principal „Înălțarea Domnului” și hramul secundar „Sf. Apostol Andrei”[2], este cea mai mare biserică din România și cea mai înaltă și mai mare clădire de biserică ortodoxă ca volum și suprafață din lume.[3][4] Piatra de temelie a lăcașului de cult a fost pusă în februarie 2011 și data finalizării sale era preconizată a fi la sfârșitul anului 2018.[5] Costurile, până in noiembrie 2018, s-au ridicat la 110 milioane de euro[6] iar câștigătorul licitației pentru proiectarea edificiului este firma băcăuană Vanel Exim.
După ce în 2018, la Centenarul Marii Uniri, a fost sfințit altarul catedralei, se preconizează ca până în octombrie 2025 să fie finalizate lucrările de construcție, vitraliile exterioare și picturile (mozaicurile) interioare, astfel încât la 26 octombrie 2025 să aibă loc sfințirea(d) catedralei, eveniment care va marca și Centenarul Patriarhiei Române.[7]
Istoric
Ideea unei catedrale naționale nu este nouă, ea a fost propusă de sinodul bisericii autocefale române și regele Carol I și reluată în anii de după Primului Război mondial, când au și apărut schițe de proiecte ale arhitecților perioadei (cea mai cunoscută fiind a arhitectului Petre Antonescu) și a fost susținută de patriarhul Miron Cristea[8].
Uitat în anii comunismului, proiectul a fost reluat după 1989, susținut de o parte din populație: un sondaj național realizat în 2011 arată că 60 % dintre persoanele întrebate erau, mai ales în mediul rural, favorabile, proiectului, cu condiția ca fondurile să fie alocate de Biserică, nu de Stat.[9]
Pe 29 noiembrie 2007, Patriarhul Daniel a pus piatra de temelie a noului edificiu.[10]
La 25 noiembrie 2018 a avut loc sfințirea(d) altarului Catedralei Mântuirii Neamului, slujba fiind oficiată de Patriarhul Daniel al României și de Patriarhul Ecumenic Bartolomeu.[11] Se preconiza ca lucrările de construcție și amenajare a catedralei să fie finalizate până în anul 2021.[12]
Amplasament
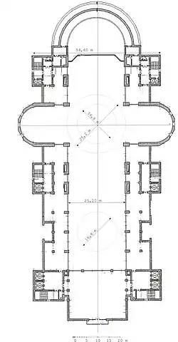
Tema de concurs a fost schimbată în permanență datorită schimbării amplasamentului. Actualmente, locul pe care deja s-a pus piatra de temelie este în spatele Casei Republicii, pe dealul Arsenalului. Capacitatea este de 6000 de persoane, dintre care 1000 de scaune, spațiul pentru cor este dimensionat pentru 300 de persoane, parterul catedralei va adăposti o sală multifuncțională și spatii muzeale pentru 2000 de persoane, cu grupuri sanitare și garderoba aferentă. Înălțimea maximă (de la cota zero) este de 127 m.[1]
„Dealul Arsenalului este cel mai potrivit loc dintre cele existente, cele ce pot fi puse la dispoziția Bisericii, ca dovadă că hotărârea Consiliului Național Bisericesc de ridicare a construcției în acest loc a fost adoptată zilele acestea și de Sfântul Sinod.”
Construirea Catedralei se face pe baza legii, trecerea terenului din proprietatea statului în cea a BOR. Apoi va fi pusă piatra de temelie și vor fi sfințiți cei 11.000 de metri pătrați pe care va fi ridicată Catedrala.
„Banii necesari pentru construcție nu există, atât de la conturile speciale deschise de la începutul lui 1990, unde credincioșii au făcut donații, cât și din alte donații majore. De pildă, papa Ioan Paul al II-lea a donat mai demult 100.000 €, iar Arhiepiscopul Atenei, tot atât”, a mai spus episcopul Ciprian Câmpineanul. Acesta a adăugat că mai multe firme de construcții și-au anunțat deja intenția de a sponsoriza cu materiale de construcție marele proiect. În plus, există posibilitatea creării unor tabere de muncă pe Dealul Arsenalului, unde studenții vor putea da ajutor voluntar.
Din 1996 încoace au fost propuse mai multe amplasamente pentru Catedrală. Primul a fost Piața Unirii din București, în fața clădirii care adăpostește Unirea Shopping Center, unde în prezența Papei Ioan Paul al II-lea a fost slujită o troiță, ca piatră de temelie. În perioada 1999-2002 se discuta axul Bulevardului Unirii, în fața terenului pe care ar fi trebuit sa se înalțe noua clădire a Operei.[13]
În anul 2004, Guvernul Adrian Năstase a transmis în folosință Bisericii Ortodoxe Române o suprafață de 5 hectare din Parcul Carol I, pe platoul central, unde urma să se demoleze Mausoleul și să fie ridicată Catedrala Mântuirii Neamului Românesc. Decizia de construire a Catedralei pe locul Monumentului Eroilor din Parcul Carol a stârnit numeroase controverse și proteste. Traian Băsescu, în calitate de primar al Capitalei, s-a opus, s-a judecat și a câștigat procesele cu autoritățile (Primăria sectorului 4 și Consiliul general) care au emis autorizații pentru construirea Catedralei în parc,[14] astfel că Mausoleul a fost salvat și s-a trecut la căutarea unui alt amplasament pentru Catedrală.
În iunie 2009 Biserica Ortodoxă Română declara că ansamblul Catedralei se va întinde pe 11 hectare de teren, situate lângă Palatul Parlamentului. Se anunța că Catedrala Mântuirii Neamului va avea o înălțime de 120 de metri[5], va fi asigurată împotriva cutremurelor de peste 8 grade pe scara Richter și va avea o suprafață de 38.000 de metri pătrați. Catedrala urma să aibă o structură de beton armat cu ziduri de cărămidă, în interiorul căreia vor putea intra aproape 5.000 de pelerini, Se intenționa ca slujba să poată fi urmărită de la fața locului chiar de 125.000 de credincioși, pe ecrane montate pe holuri și în exteriorul Catedralei. Costul total al lucrării era estimat la 400 de milioane de euro, bani în care sunt incluse finisajele, sculptura și pictura.[15][16]
Amplasarea Catedralei Naționale pe Dealul Arsenalului este văzută ca o reparație morală pentru cele cinci biserici «răstignite», dintre care trei (Alba Postăvari, Spira Veche și Izvorul Tămăduirii) au fost demolate, iar două (Schitul Maicilor și Mihai Vodă) au fost strămutate de către regimul comunist spre a face loc actualului Palat al Parlamentului.[17]
Arhitectură
Din punct de vedere arhitectural, "Catedrala Mântuirii Neamului este o sinteză între tradiție si contemporaneitate, armonizând elemente arhitecturale din diferite zone ale României (ocnițe moldave, pridvoare brâncovenești și turnuri zvelte transilvane), precum și elemente de monumentalitate de la unele catedrale occidentale, ținând seama că o mare parte a diasporei române se află în Occident".[18]
Etapele construirii catedralei
Câștigătorul concursului de proiecte
După definitivarea noului amplasament al lăcașului de cult, Biserica Ortodoxă Română a organizat un concurs pentru alegerea proiectantului general al catedralei. La 3 iulie 2010 BOR a anunțat că firma Vanel Exim din Bacău a fost desemnată câștigătoare a concursului de proiectare pentru ridicarea lăcașului de cult, valoarea totală a devizului de execuție a catedralei fiind în jur de 100 de milioane de euro, mai mic decât prețul inițial al lucrării la roșu, care fusese estimat la 180-200 de milioane de euro. Purtătorul de cuvânt al Patriarhiei Române a declarat că pentru proiect nu vor veni bani de la statul român și că Biserica își asumă întreaga responsabilitate financiară, banii împrumutați urmând a fi înapoiați într-un termen de 15–20 de ani, plus o perioadă de grație, de la ridicarea construcției la roșu.[19] Locul ales este Dealul Arsenalului, pe un teren aflat în proprietatea Patriarhiei din 2005, acordat prin ordonanță de Guvern, având ca destinație exclusivă construcția Catedralei Mântuirii. Catedrala va avea 120 m lungime, 70 m lățime și 120 m înălțime, se va desfășura pe o suprafață de 38.000 de metri pătrați și va avea două hramuri: „Înălțarea Domnului” (Ziua Eroilor) și „Sfântul Apostol Andrei”. La prețul ridicării la roșu se vor adăuga încă circa 200 de milioane de euro pentru picturile din Catedrală.[19]
Fazele realizării construcției
_(28811729885).jpg)
Dată fiind complexitatea proiectului, construirea catedralei se întinde pe o perioadă relativ îndelungată. Calendarul lucrărilor de construcție a fost respectat aproape în totalitate[20]:
- noiembrie 2017 - finalizarea lucrărilor de zidire la nava principală și balcoanele interioare până la cota +45,00 m;
- aprilie 2018 - finalizarea lucrărilor de zidire la turlele secundare, cota +62,00 m;
- iunie 2018 - finalizarea lucrărilor de zidire la turla clopotniță, cota +75,50 m;
- iulie 2018 - finalizarea lucrărilor de zidire la turla principală („Pantocrator”), cota +106,00 metri;
- septembrie 2018 - structura metalică a acoperișului și realizarea învelitorii acestuia;
- noiembrie 2018 - finalizarea catapetesmei și sfințirea altarului noii Catedrale Naționale;
- 2019-2024 - continuarea lucrărilor la picturile interioare în tehnica mozaic, finalizarea învelitorilor turlelor și a finisajelor exterioare;
- 2025 - Terminarea instalațiilor interioare, finalizarea picturilor în tehnica mozaic, montarea vitraliilor exterioare și încheierea lucrărilor la structura de rezistență a porticurilor de la intrarea principală[7];
- 8 aprilie 2025 - finalizarea montării crucii de pe turla cea mai înaltă a catedralei (turla „Pantocrator”). A fost o lucrare complexă, având în vedere greutatea crucii (aproximativ 7 tone) și înălțimea la care a fost montată (la circa 130 m deasupra solului), începută pe 24 martie 2025.[21]
- 26 octombrie 2025 - sfințirea Catedralei Naționale cu prilejul împlinirii a 100 de ani de la înființarea Patriarhiei Române[7].
Clopotele

Pe 11 noiembrie 2016 a fost turnat la Innsbruck primul clopot al Catedralei Mântuirii Neamului. Acesta cântărește peste 25 de tone, și are un diametru de 3,35 metri, fiind cel mai mare clopot în mișcare din lume situat într-un edificiu de biserică. Pentru bronzul destinat turnării clopotului s-a folosit 78% cupru electrolitic și 22% staniu electrolitic. Pe clopotul mare se regăsește basorelieful Patriarhului Daniel, cu scopul de a evidenția binecuvântarea acestuia pentru realizarea lor.[22]
Cost și finanțare
În 2006, Evenimentul Zilei a estimat costul noii catedrale care urma să fie de peste 500 milioane €, inclusiv prețul terenului.[23] În 2007, Patriarhul Daniel a estimat costul clădirii, excluzând terenul, la aproximativ 400 milioane €.[24] În 2008, Le Figaro a estimat costul la 1 miliard €.[25]
În 2007, guvernul a anunțat că va dona 30 de milioane de lei (8 milioane €) pentru construcția noii catedrale. Parlamentul a legiferat că o jumătate din costul Catedralei va proveni de la stat.[26] Acest act a fost criticat. Daniel Dăianu, un deputat european liberal, a sugerat că este vorba despre cheltuieli populiste, iar fondurile ar proveni din alte domenii de cheltuieli.[26] Remus Cernea, șeful Asociației Solidaritatea pentru libertatea de conștiință s-a plâns că finanțarea catedralei cu bani publici discriminează finanțarea altor proiecte.[27]
În 2010, anul începerii construcției, Patriarhia spunea că va construi Catedrala "din fonduri proprii și din contribuțiile credincioșilor, și nu cu bani de la Buget".[28] Totuși, la începutul anului 2011 guvernul a donat 10 milioane de lei [29] iar Primăria Capitalei a acordat aceeași sumă.[30]
În 2013, costurile de construcție ale catedralei au fost estimate la 400 milioane de lei.[31] În 2015, la cinci ani după începerea lucrărilor de construcție, costul total al structurii catedralei fără finisaje a fost reevaluat la 91 milioane €.[32]
În primăvara anului 2017, purtătorul de cuvânt al Patriarhiei spunea că estimarea costului de construcție este de 80 milioane €, fiind deja cheltuite 65 de milioane până în acel moment. „Ar mai fi nevoie de aproximativ 20 de milioane de euro pentru a ridica în formă finală Biserica. Este vorba despre banii Patriarhiei Române, banii din donațiile credincioșilor din țară și din străinătate. Aceste donații sunt de peste 20-30% din suma finală. A doua sursă de finanțare o constituie Guvernul României, care, în limita bugetară disponibilă, acordă, în fiecare an, un ajutor financiar și a treia sursă de finanțare o constituie administrațiile locale”.[33]
În noiembrie 2018, Patriarhia Română a transmis că până în prezent pentru catedrală s-au cheltuit 110 milioane de euro din care "un procent de aproximativ 25% provine din donații, restul reprezentând sprijinul financiar oferit de autoritățile administrației publice centrale și locale".[6]
La sfârșitul anului 2022, la Catedrala Mântuirii Neamului deja erau investiți 200 de milioane euro.[34]
Critici
Au fost formulate numeroase critici la adresa construirii catedralei:
- «mântuirea unui neam» se obține prin însușirea valorilor morale ale statului de drept și democrației moderne, prin pocăința pentru crimele istorice și prin lupta împotriva corupției, nu prin ridicarea unui nou monument faraonic de milioane de € în continuarea «realizărilor mărețe» din perioada comunistă[35] · [36]; Trupa Taxi a lansat în 2016 o piesă-manifest numită "Despre smerenie".[37]
- pe planul financiar, fondurile sunt în mare parte publice, deși statul este deficitar și deși atât spitalele, cât și serviciile și transporturile publice ar avea nevoie acută de milioanele de € cheltuite pentru acest șantier[31]; de altfel lipsa de bani provoacă opriri și întârzieri ale lucrărilor; Biserica Ortodoxă Română este criticată că apelează la donații pentru continuarea finanțării acestui proiect în condițiile în care, având statut similar unei organizații caritabile nonprofit legal constituite, are unele facilități fiscale, spre deosebire de persoanele fizice sau juridice ce au activități comerciale.[38] · [39] · [40];
- pe planul patrimonial, deși arhitecții și specialiștii și-au dat osteneala să ridice toate cotele, să fotografieze, deseneze și în anumite cazuri să demonteze, să numeroteze și să păstreze chiar pietrele și elementele decorative, bisericile-monumente istorice distruse în anii 1980 din voința lui Nicolae Ceaușescu nu au fost reconstruite.[41]
Note
- 1 2 „Catedrala Națională – O Catedrală pentru țară!”, Catedrala-nationala.ro, accesat în
- ↑ „Hramul Catedralei Mântuirii Neamului”, Basilica.ro, , accesat în
- ↑ Pannelli coibentati isolanti in acciaio | Marcegaglia Buildtech (în engleză), Marcegaglia Buildtech
- ↑ Newsroom (), Exclusive coverage! On the site of People's Salvation Cathedral less than two days before grand opening: Entrance secured by bodyguards (în engleză), Business Review
- 1 2 Catedrala Mântuirii Neamului prinde contur. Patriarhia a investit până acum 50 de milioane de euro Arhivat în , la Wayback Machine., 19 aprilie 2013, Realitatea TV, accesat la 12 august 2013
- 1 2 „Trei sferturi din banii pentru Catedrala Neamului vin de la stat”, EurActiv, accesat în Text " Știri, politici europene & Actori UE online" ignorat (ajutor)
- 1 2 3 „Patriarhul Ecumenic și Patriarhul României vor sfinți Catedrala Națională în luna octombrie”, Basilica.ro, , accesat în
- ↑ Ion Cătălin, articol Catedrala Mântuirii Neamului, proiectul unui simbol național în anii interbelici Arhivat în , la Wayback Machine., în Historia din 23 noiembrie 2011.
- ↑ ).
- ↑ Prea Fericitul Patriarh Daniel a pus piatra de temelie la Catedrala Patriarhala, 29 noiembrie 2007, Dorina Zdroba, CrestinOrtodox.ro, accesat la 8 septembrie 2013
- ↑ Raluca Ene (), „Sfințirea Catedralei Naționale în Anul Centenar”, Basilica.ro, accesat în
- ↑ Gheorghe Anghel (), „Eveniment istoric: Patriarhul Ecumenic și Patriarhul României au sfințit Catedrala Mântuirii Neamului”, Basilica.ro, accesat în
- ↑ Catedrala Neamului mintuieste Casa Poporului
- ↑ Catedrala Neamului se mută
- ↑ Catedrala Mântuirii Neamului: 110 metri înălțime, 12 lifturi, capacitate - 5.000 de pelerini, cost – 400 milioane de euro - VIDEO, 26 iunie 2009, Gândul, accesat la 12 august 2013
- ↑ Catedrala Mântuirii, un hibrid ortodox-catolic, 10 decembrie 2009, Mirela Corlățan, Evenimentul zilei, accesat la 30 decembrie 2011
- ↑ „O Catedrală pentru Capitală. Date corecte și semnificative”. patriarhia.ro. Accesat în .
- ↑ Emilia Olescu (). „Arhitectura Catedralei Mântuirii Neamului - o sinteză între tradiție și contemporaneitate”. www.bursa.ro. Accesat în .
- 1 2 O firmă din Bacău va construi Catedrala Mântuirii Neamului la „prețul rezonabil” de 100 de milioane de euro, 2 iulie 2010, Gândul, accesat la 12 august 2013
- ↑ „Caracteristicile și descrierea Catedralei Naționale”, Catedralaneamului.ro, arhivat din original la , accesat în
- ↑ „A fost montată crucea pe turla mare a Catedralei Naționale: Un moment ingineresc de top, sublimat de slujba de sfințire”, Basilica.ro, , accesat în
- ↑ Primul clopot al Catedralei Mântuirii Neamului, a fost turnat la Innsbruck
- ↑ "Catedrala Zgârie-nori", în Evenimentul Zilei, 23 februarie 2006
- ↑ "PF Daniel: Catedrala Mântuirii Neamului costă mai puțin decât aeroportul din Iași", Gândul, 29 noiembrie 2007.
- ↑ "Les projets pharaoniques de l'Église orthodoxe à Bucarest." Le Figaro, 1er février 2008.
- 1 2 "Catedrala Bugetului Neamului" Arhivat în , la Wayback Machine. România Liberă, 13 decembrie 2007.
- ↑ "A doua plângere prealabilă demersului în instanță privind acordarea de fonduri publice pentru Catedrala Mântuirii Neamului" Arhivat în , la Wayback Machine., Humanism.ro
- ↑ „Noua Catedrală nu se va construi cu bani de la Buget”. Ziarul Lumina. .
- ↑ „Catedrala Neamului "prinde aripi" cu zece milioane de lei de la Guvern”. Adevărul. .
- ↑ „Primaria Capitalei va acorda 10 milioane de lei pentru Catedrala Mantuirii Neamului”. HotNews. .
- 1 2 „Catedrala Neamului va costa 400 mil. lei, bani cu care se puteau construi 1.500 de scoli, 300 km de autostrada sau finanta 8.000 de transplanturi”. InCont.ro. .
- ↑ Catedrala Mântuirii Neamului - gata "la roșu" peste doi ani, romania-actualitati.ro
- ↑ „Catedrala Mântuirii Neamului, ridicată în proporție de 70%”. Mediafax. .
- ↑ ProTV. „Până acum, Catedrala Mântuirii Neamului a costat 200 de milioane euro”. Accesat în .
- ↑ Lavinia Stan, L. Turcescu, Politics, national symbols and the Romanian Orthodox Cathedral în : Europe-Asia Studies nr. 58 (7), 2006, pp. 1119-1139
- ↑ Iosif Țon, Catedrala mântuirii neamului: cum încurajează biserica ortodoxă corupția în poporul român [romanialibera.ro/opinii/comentarii/catedrala-mantuirii-neamului--cum-incurajeaza-biserica-ortodoxa-coruptia-in-poporul-roman-304702], România liberă din 13 iunie 2013.
- ↑ „axi vorbește Bisericii "Despre smerenie" într-o nouă piesă”. Gândul. .
- ↑ Guvernul scoate Biserica din Codul Fiscal. Lista noilor scutiri de taxe pentru culte - Gândul
- ↑ Catedrala Mantuirii Neamului, construita pe banii tai! Costa 120 de mil. €
- ↑ Finalizarea Catedralei Mântuirii Neamului, amânată cu un an. Câți bani a înghițit până acum cea mai importantă construcție a BOR
- ↑ Reportaj în ziarul francez Le Figaro din 12 ianuarie 2013: Arielle Thedrel, « Catedrala care dezbină Bucureștenii ».
Vezi și
- Lista catedralelor din România
- Listă de biserici din București
Legături externe
Materiale media legate de Catedrala Mântuirii Neamului la Wikimedia Commons- Patriarhia Română: Catedrala Mântuirii Neamului
- Catedrala Mântuirii Neamului, proiectul unui simbol național în anii interbelici Arhivat în , la Wayback Machine., 23 noiembrie 2011, Catalin Ion, Historia
- Catedrala Mantuirii Neamului - Documentare istorica, 11 octombrie 2006, Gheorghe Vasilescu, CrestinOrtodox.ro
- Vis de patriarh[nefuncțională] , 5 februarie 2007, Daniela Cârlea ȘOntică, Jurnalul Național
- Catedrala Neamului este din nou un vis realizabil[nefuncțională] , 16 decembrie 2007, Prof. Univ. Dr. Cătălin Turliuc, Ziarul Lumina
- Un vis mai mare decât veacul Arhivat în , la Wayback Machine., 9 decembrie 2007, Cătălin Turliuc, Ziarul Lumina
- Catedrala Națională, un simbol al eroilor neamului
- YouTube
- De ce a fost ales mozaicul ca tehnică de pictare pentru Catedrala Națională
- Icoana Nașterii Domnului și Arcul Triumfal, pictate în mozaic
- Icoanele Sfintelor Pătimiri ale Domnului din Catedrala Națională
.jpg)