Termocentrala Borzești
Termocentrala Borzești a fost una dintre cele mai mari uzine de producere a curentului electric din România și prima mare centrală de termoficare din țară, ce putea alimenta consumatorii cu abur și energie electrică,[2] fiind situată în cartierul Borzești al municipiului Onești.
| Termocentrala Borzești | |
![]() | |
| Soartă | –Capacitate totală instalată de 210 MW din grupul 2x210 MW
–Fără personalitate juridică (sucursală) |
|---|---|
| Fondată | 1952 |
| Țara | |
| Sediu | Str. Fântânele, nr. 16, Onești, Județul Bacău |
| Industrie | Energetică |
| Proprietar | Termoelectrica S.A. |
| Angajați | 150 (schimbul I)[1] |
| Prezență online | |
| Termelectrica.ro/Sucursala Electrocentrale Borzești (WebArchive) | |
Amplasarea între localitățile Onești și Borzești a unui mare complex industrial petrochimic, aprobată prin H.C.M. nr. 1638/1952, parte integrantă a măsurilor luate pentru dezvoltarea Moldovei, s-a dovedit a fi optimă pe criterii tehnice, economice și sociale, avându-se în vedere și bogățille economice apreciabile din bazinul Trotuș. În aceeași hotărâre se stipula necesitatea construirii unei centrale electrice de termoficare la Borzești, care urma să alimenteze cu energie electrică și termică Platforma Petrochimică Borzești. Datele existente în anul 1951 arătau că necesarul de energie electrică în Moldova se ridica pentru anul 1955 la 1350 mil. KWh, adică de 5,6 ori mai mult decât întreaga producție a anului 1951.[3]
Termocentrala a fost construită pentru a asigura energia electrică și termică Platformei Petrochimice Borzești, debitând totodată energie electrică și în Sistemul Energetic Național. Prin asigurarea prin termoficare, a căldurii necesare încălzirii orașului, municipiul Onești a devenit primul oraș din țară complet termoficat.[2]
Construcția ei a început în anul 1953,[4] fiind prima unitate industrială a cărei construcție a început pe Platforma Petrochimică Borzești, ca urmare a politicii de industrializare. În anul 1956 a intrat în funcțiune primul grup de 25 MW.[2] Centrala a fost proiectată inițial pentru o putere finală de 225 MW.[2] Ulterior a urmat o ascensiune a acestei unități în perioada 1960-1965, când puterea instalată a ajuns la 235 MW.[5] În anul 1968 a intrat în funcțiune primul grup de 200 MW și în 1969 a celui de-al doilea grup de 200 MW, ajungând în anul 1970 la o putere de 625 MW.[6]
Pentru satisfacerea consumului termic s-au mai pus în funcțiune începând cu anul 1974 și până în 1980 5 cazane a 50 tone abur/oră și 3 cazane a 100 tone abur/oră. În etapa 1979-1980 au intrat în funcțiune încă 3 cazane a 100 tone abur/oră. În anul 1980 unitatea avea o putere termică instalată de 2198 G.cal/oră.[7]
Datorită necesităților noilor dezvoltări de pe platforma industrială[5] s-a hotărât extinderea centralei Borzești cu o centrală termoelectrică de compensație,[8] în anul 1978 înființându-se Termocentrala II Borzești[8] cu puterea inițială de 100 MW pe hidrocarburi, ca ulterior să poată ajungă la puterea maximă de 300 MW pe cărbune în perioada următoare.[5]
Termocentrala a ajuns la o putere finală de 655 MW (3x25+2x50+1x60+2x210 MW), pe gaz natural și păcură.[9]
Din anul 1990 Întreprinderea Electrocentrale Borzești a devenit Filiala Electrocentrale Borzești[10] și aparținea de RENEL, ulterior din 1998 de CONEL iar din anul 2000 de Termoelectrica S.A.[11]
Capacitatea totală instalată actual este de 210 MW și constă într-un bloc de condensație pe hidrocarburi pus în funcțiune în anul 1969.[12] Termoelectrica are în vedere oprirea unității de 210 MW în anul 2019, în schimb până în 2020 este în plan intrarea în funcțiune o unei noi unități modernizate de produce a curentului electric.[13]
În aproprierea termocentralei se află stația de transformare 400/220/110 kV Gutinaș, care este cea mai mare din Moldova și N-E României, reprezentând un nod al Sistemul Energetic Național (SEN) prin care se asigură alimentarea cu energie electrică a întregii zone de N-E a țării, precum și racordarea grupurilor din centrala termoelectrică Borzești și evacuarea puterii în SEN.[14]
La data de 31 decembrie 1955 a fost inaugurată prima linie de 110 kV din Moldova cu scopul de a evacua surplusul de energie electrică de la termocentrala Borzești spre SEN.[15] În anul 1957 a intrat în funcțiune linia electrică de înaltă tensiune Borzești–Bacău–Roman–Bicaz („Stejarul”).[2]
Amplasament
Centrala este amplasată, în cadrul platformei petrochimice Borzești în centrul consumatorilor industriali de căldură și energie electrică, pe malul drept al râului Trotuș, pe o terasă a luncii râului, având de o parte rafinăria și combinatul de cauciuc sintetic și de cealaltă parte combinatul chimic. Râul Trotuș asigură apa de răcire necesară centralei.[16]
Terenul de amplasament prezintă următoarea stratificație geologică: un strat vegetal de 0,20 – 0,40 m în grosime, un strat de Iehm de terasă, impropriu pentru fundări, în grosime de circa 3,00 m și stratul de pietriș, recomandat pentru fundări, la o adâncime de circa 3,50 m. Roca de bază, recomandată ca al doilea strat de fundare și constând din straturi alternate de argile, marne tari, gresii slabe și conglomerate, se află la o adâncime de 4,50 – 5,00 m.[16]
Nivelul hidrostatic al apelor are un caracter variabil cu abundența precipitațiilor și apare la adâncimea de circa 4,30 m.[16]
Gradul de seismicitate este 7, ceea ce a impus măsuri speciale la dimensionarea construcțiilor.[16]
Date tehnice


Unitatea 2x210 MW
Capacitatea totală instalată actuală a C.T.E. Borzești este de 210 MW (unitatea 2 x 210 MW) ce constă într-un bloc de condensație pe hidrocarburi pus în funcțiune în anul 1969. Cazanul a fost fabricat la Taganrog, în URSS, iar turbina cu abur și generatorul electric au fost fabricate tot în URSS, la Uzina LMZ din Leningrad. Cazanul funcționează cu păcură, cu o putere calorifică inferioară de 38.720 kj/kg, și cu gaze naturale, cu o putere calorifică inferioară de 31.820 kj/mc. Sistemul de răcire este construit ca o combinație de circuit deschis și circuit închis cu turnuri de răcire, iar apa de răcire este preluată din râul Trotuș.[17] Înfășurările statoarelor generatoarelor de 210 MW fiecare sunt răcite cu hidrogen și apă.[12]
C.T.E. 2x210 MW este format din următoarele zone active: sala cazanelor 7A, 7B, 8A, 8B; sala turbinelor (turbinele și generatoarele 7 și 8); circuitul hidro; camera de comandă electrică - stații electrice: stația electrică de 110 kV; stația electrică 220 kV aferentă blocurilor 7 și 8 de 210 MW. Depozitele de combustibil: rezervoare păcură – subterane și supraterane, cu capacitate de depozitare de 22.400 t; stațiile de reglare gaze naturale CET-1 și Secția Termică Onești. Instalațiile de pretratare apă: instalația de demineralizare apă; instalația de tratare condens 2x210 MW; depozitele de oxigen, hidrogen, acetilenă, clor, ulei și reactivi chimici. Pavilionul administrativ: rețeaua locală de calculatoare camera serverelor; cabinete conducere; birourile resurse umane, tehnic, PPUR, structura de securitate, arhiva tehnică, intrările principale de acces, perimetrul unității (CET-1 și secția Termică Onești); sistemul de comunicații (CT digitală, stația radio-emisie).[18]
Substanțe folosite în procesul obținerii energiei electrice: păcură – folosită în procesul de ardere pentru obținerea energiei electrice. Pe amplasamentul unității este depozitată în rezervoare de beton, subterane și supraterane cu o capacitate de aprox. 25.000 tone: gaz natural – folosit în procesul de ardere pentru obținerea energiei electrice și termice. Transportul gazului la arzătoarele cazanelor se face prin conducte; acid clorhidric (max. 180 tone), acid sulfuric (max. 120 tone), hidroxid de sodiu (max. 120 tone) – substanțe folosite în procesul de regenerare a maselor schimbătoare de ioni, ce sunt depozitate în cisterne și rezervoare metalice protejate anticoroziv; amoniac – folosit în procesul de reglare a Ph-ului apei de alimentare a cazanelor energetice (max. 5 tone). Este depozitat în concentrație de max. 24 %, în butoaie; hidrat de hidrazină – folosit în procesul de degazare chimică a apei (max. 5 tone), fiind depozitat în butoaie; hidrogen – folosit în procesul de răcire a generatoarelor de curent. Este stocat în tuburi de inox sub presiune ridicată.[19]
Prin producerea combinată de energie electrică și căldură în termoficare, folosind drept combustibil gazele de sondă din regiune, gazele reziduale rezultate din procesul tehnologic al industriilor, gazul metan și ca rezervă păcura, întreprinderea realiza însemnate economii de combustibil.[16]
Unitățile 3x25+2x50+1x60 MW


Centrala veche a fost realizată în două etape, cu agregate de tipuri și parametrii diferiți.[20]
În prima etapă s-au instalat un cazan tip TM-170, de 170 t/h, și două cazane tip TM-230, de câte 230 t/h, cu parametrii aburului de 100 ata, 510 °C, împreună cu două turbine tip VPT-25-3 cu condensație și două prize reglabile de câte 25 MW și o turbină tip VR-25-18 de contrapresiune de 25 MW, cu parametrii aburului la intrarea în turbină de 90 ata, 500 °C. Prizele turbinelor VPT-25-3 au presiunile de 8–13 ata și 1,2–2,5 ata. Contrapresiunea turbinei VR-25-18 este de 15–21 ata.[20]
Schema adoptată, pe partea de abur principal, este bloc cazan-turbină cu bară transversală de ajutor.[20]
Pentru alimentarea cu apă a cazanelor s-au realizat două colectoare principale în care refulează cele 4 electropompe de alimentare, din care una este de rezervă, de câte 270m³ /h, la 150 at, și cele 2 turbopompe de alimentare de rezervă de câte 270 m³/h, la 150 at. Parametrii aburului pentru acționarea turbinelor pompelor sunt 90 ata, 500 °C.[20]
Etapa a doua, extinderea centralei, se realizează cu trei cazane tip TGM-84 de câte 420 t/h, la 140 ata, 570°C, două turbine tip VPT-50-3 cu condensație și două prize reglabile și o turbină tip PVR-50-13 cu contrapresiune, toate de câte 50 MW, parametrii aburului la intrare fiind 130 ata, 565 °C. Prizele turbinelor VPT-50-3 au presiunile de 10–16 ata și 1,2–2.5 ata. Contrapresiunea turbinei PVR-50-13 este de 10–16 ata.[20]
Schema termică a etapei a doua s-a simplificat: pe partea de abur se menține schema-bloc cu bară transversală de ajutor, însă alimentarea cazanelor se realizează printr-un singur colector în care refulează cele 4 electropompe de alimentare, din care una de rezervă, de câte 500 m³/h, la 180 at. S-a renunțat la turbopompele de alimentare de rezervă.[20]
Pe partea de abur, se realizează o legătură între cele două etape, prin intermediul unei instalații de reducere-răcire de 140/100 ata, 570 °C/510 °C. Apa de alimentare a cazanelor rezultă din amestecul a două circuite principale în degazoarele de 6 ata, și anume; condensatul, reîntors de Ia industrii și tratat (în special pentru clezuleiere), împreună cu apa de adaos tratată chimic prin procedeul cu mase schimbătoare de ioni, se trece prin degazoarele atmosferice de 1,2 ata, ajungând apoi la degazorul de 6 ata, prin intermediul pompelor de transvazare: condensatul principal de la turbine, condensatul de la cele trei transformatoare de abur de câte 25 t/h, la 13/10 ata și 275/210 °C, condensatul de la boilerele de termoficare și cu condensatul secundar de la preîncălzitoarele regenerative de joasă și înaltă presiune ajung direct în degazoarele de 6 ata.[20]
Pompele de alimentare a cazanelor aspiră din degazoarele de 6 ata și refulează prin preîncălzitoarele de înaltă presiune în colectoarele de alimentare a cazanelor.[20]
Degazarea se face cu abur de la prizele regenerațive de 1,2–2,5 ata ale turbinelor și de la expandoarele de purjă treapta II, respectiv cu abur de 10–13 ata de la transformatoarele de abur, prizele industriale ale turbinelor și expandoarele de purjă treapta I.[20]
Consumatorii de abur se alimentează astfel: cu abur de 10 ata de Ia transformatoarele de abur și contrapresiunea turbinei tip PVR-50-13, cu abur de 16 ata de la prizele turbinelor 4 și -5 tip VPT-50-3, cu abur de 21 ata de la contrapresiunea turbinei 3 tip VR-25-18 și cu abur de 33 ata dintr-o instalație de reducere-răcire de 100/40 ata. Preluarea vârfurilor de consum de abur și rezerva pentru siguranța alimentării cu abur a consumatorilor se realizează prin instalațiile de reducere-răcire de 100/13 ata, 40/13 ata, 110/16 ata și prin instalațiile rapide de reducere-răcire de 100/21 ata, 21/10 ata și 140/10 ata.[20]
Apa fierbinte, necesară încălzirii prin termoficare a orașului Onești și a combinatului de cauciuc sintetic,[20] se obține separat pentru fiecare din cei doi consumatori, cu două grupe de boilere de termoficare, având fiecare două boilere de bază de câte 350 m², alimentate cu abur la 1,2–2,5 ata și un boiler de vârf de 300 m³, alimentat cu abur la 13 ata.[21]
Circulația apei de răcire prin condensatoarele turbinelor se realizează numai prin sifonare, fără pompe; pentru răcirea aerului la grupurile de 25 MW, a uleiului, a lagărelor etc, circulația apei se asigură cu ajutorul unor electropompe.[21]
Sala cazanelor cuprinde, într-o construcție complet închisă, cele trei cazane de 100 ata, 510 °C, care sunt de radiație și cu circulația naturală a apei. Funcționarea lor inițială a fost pe păcură, apoi făcându-se adaptarea pentru a arde și gaze naturale.[21]
Extinderea sălii cazanelor se face într-o soluție constructivă semideschisă, cu peretele din spate al cazanelor de 140 ata, 570 °C spre exterior. Cele 3 cazane, de radiație și cu circulație naturală, funcționează pe gaze și păcură.[21]
Nivelul de deservire a cazanelor este la cota +4.00, cu frontul înspre corpul degazoarelor, unde primele trei cazane au dispuse și tablourile de control, comandă și automatizare. La primele trei cazane, ventilatoarele de aer sunt instalate în sala cazanelor la cota + 0.00, iar într-o construcție închisă paralelă cu sala cazanelor și lipită de ea, s-au instalat ventilatoarele de gaze de ardere.[21]
La cazanele 4, 5 și 6 preîneălzitoarele de aer, tip Ljungström, ventilatoarele de aer și ventilatoarele de gaze de ardere sunt instalate în aer liber.[21]
Sala mașinilor cuprinde cele șase grupuri turbogeneratoare.[21]
Grupurile turbogeneratoare sunt dispuse cu axele paralele cu axa sălii de mașini, având generatoarele către frontul fix al sălii. Nivelul de deservire este la cota +8.00 unde sunt dispuse și tablourile de control, comandă și automatizare ale grupurilor 1, 2 și 3.[22]
La cota -0,00 a sălii de mașini se află anexele turbogrupurilor: pompele de condensat, instalațiile de circulație și răcire a uleiului, instalațiile preîncălzitoarelor regenerative de joasă și înaltă presiune, instalațiile de hidrogen pentru grupurile 4, 5 și 6. De asemenea, în sala mașinilor Ia cota ±0,00 sunt instalate pompele de alimentare, transformatoarele de abur cu o platformă de deservire la cota + 5,00 și instalația boilerelor de termoficare.[22]
Manipularea echipamentului în sala mașinilor se face cu ajutorul a două poduri rulante, unul de 75/15 t și unul de 30/5 t.[22]
Între sala de cazane și sala de mașini se află corpul degazoarelor, în care s-au dispus, la diverse nivele, următoarele servicii auxiliare ale CET: la cota +0,00 stațiile de 6 kV și 0,4 kV pentru servicii interne, la cota +5,40 tunelul de ventilație și cabluri, la cota +8.00 instalațiile de reducere-răcire și rețeaua de conducte magistrale cu diverse racorduri. Cota +13,50 și cota +20,00 cuprinde degazoarele de 1,2 ata și 6 ata, împreună cu rezervoarele de apă de alimentare și diverse magistrale de abur și apă de 30/5 t.[22]
Ca anexe ale centralei se mai amintesc o gospodărie pentru primirea, depozitarea și curățirea uleiurilor, un atelier mecanic central și laboratoarele termotehnic, chimic și electric.[22]
- Automatizări
Tabloul de control (stânga) și comandă (dreapta) al unei turbine tip VPT-25-3
Camera de comandă (panourile plecărilor și serviciilor interne)
Camera de comandă (panourile generatoarelor)
Sala mașinilor (etapa I) din CET Borzești
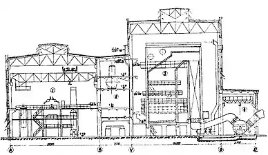
Construcții
Elementul dominant în ansamblul construcțiilor centralei este clădirea principală. în planul acestei clădiri se disting următoarele încăperi mari: sala mașinilor, corpul degazoarelor, sala cazanelor și a ventilatoarelor de gaze de ardere. Sala mașinilor are 25 m deschidere și 24,60 m înălțime.[23]
Construcția are stâlpi din beton armat și zidărie de umplutură la pereții de capăt și cel exterior. Fermele metalice ale acoperișului, pe care reazemă plăci prefabricate[23] sunt susținute de stâlpi de beton și structura de rezistență tot din beton armat a corpului degazoarelor.[24]
Planșeul de deservire este la cota +8,00. Ca finisaje se distinge cota +8.00, unde s-au realizat pardoseli de mozaic în carouri și placaj de faianță pe pereți și stâlpi.[24]
Corpul degazoarelor, situat între sala mașinilor și sala cazanelor, s-a realizat ca o construcție pe 5 nivele: canale de cabluri, sala serviciilor interne, galeria de ventilație și cabluri, instalații termomecanice și degazoare și rezervoare.[24]
Corpul degazoarelor este o construcție cu schelet din beton armat monolit, care formează elementul principal de rezistență la forțe transversale al clădirii principale.[24]
În plan, construcția are 9,00 m deschidere, înălțimea fiind egală cu aceea a sălii mașinilor. Lipită de corpul degazoarelor este sala cazanelor care are 25,00 m deschidere și 33.50 m înălțime pentru etapa I de dezvoltare a centralei. Scheletul de rezistență este tot din beton armat, iar fermele sunt metalice. Zidăria exterioară are 25 cm grosime. Pe cealaltă latură lungă a sălii cazanelor se află sala ventilatoarelor de gaze de ardere, cu o deschidere de 9,00 m și înălțimea de 12,00 m, construită tot pe schelet de rezistență de beton cu acoperiș din beton armat monolit, zidul exterior de umplutură având 37,5 cm grosime, în extindere, sala cazanelor se realizează cu perete exterior la linia peretelui din spate al cazanelor, acoperișul sprijinind pe scheletul de rezistență al cazanelor, care preia atât sarcinile provenind din pereți și acoperiș, cât și pe cele din vânt.[24]
Barajul de pe râul Trotuș
Clădirea tratării chimice
Secțiune transversală etapa I
Secțiune transversală etapa II
Vedere de ansamblu
Transformator de 31,5 MVA și vedere parțială a stației de conexiuni
Instalații
- Instalația de gaz natural – este prevăzută cu o stație de reglare automată a presiunii gazelor, care reduce presiunea acestora la 0,8 kg/cm.p. pe bază de separatori de lichid. Alimentarea cu gaz metan se face prin racordul realizat la magistrala Est a bazinului Nadeș, Mureș care furnizează cea mai mare parte din cantitatea de gaze consumate. Puterea sa calorifică este de 8.050 Kcal/Nmc. Gazul de sondă este trimis prin conducte de la schelele petroliere Moinești și Cerdac. Are o putere calorifică de 8500 kcal/Nmc. Gazele reziduale (sărace) cu o putere calorifică de 500 kcal/Nmc., sunt transportate tot prin conductă și constituie reziduuri în procesul tehnologic de producere a acetilenei la Uzina chimică din cadrul C.P. Borzești. Se mai consumă așa numitele gaze omogenizate – produs rezidual al Uzinei de petrol din C.P. Borzești — care sunt injectate în conducta de gaz de sondă. Din colectorul de joasă presiune al stației l, gazele sunt trimise la cazan prin magistrale aeriene, pe estacade de beton.[8]
- Instalația de păcură – se compune din instalația veche, aferentă CET – 235 MW, o instalație montată odată cu C.T.E. 2x210 MW și o instalație ce alimentează cele trei cazane de 105 t/h. În instalația veche se găsesc rezervoare de depozitare,[8] din beton armat îngropate, de câte 1 700 m³ fiecare,[22] prevăzute cu racorduri de umplere prin pompare directă – prin conducte subterane de la Uzina de petrol vecină. Din aceste rezervoare, păcura ajunge prin cădere liberă în Stația nr. 1 de pompare. Puterea calorifică a păcurii este de circa. 9500 Kcal/kg. Din stație, păcura este dirijată spre sala cazanelor prin conducte montate într-un tunel subteran. În alcătuirea instalației aferentă C.T.E. 420 MW intră rezervoare, pentru umplerea cărora s-a amenajat o rampă de descărcare a vagoanelor cisternă de cale ferată. Din rezervoare, păcura ajunge prin cădere liberă la Stația nr. 2, prin racorduri dispuse în tunele subterane. Din stație, păcura este trimisă la cazanele din C.T.E. prin conducte montate pe estacadă aeriană. Instalația dispune de o carieră de comandă tehnologică unde se efectuează comanda, măsura și controlul procesului tehnologic. Instalația de păcură de la cazanele de 105 t/h, cuprinde, în principal, rezervoare de depozitare și două trepte de pompare. Între cele trei instalații există legături prin conducte, care conferă elasticitate schemelor de funcționare.[8] Stația de pompare a păcurii este prevăzută cu utilajul necesar preparării și trimiterii păcurii la injectoarele cazanelor și s-a dimensionat corespunzător normativelor privind combustibilul de rezervă. Păcura constituie combustibilul suplimentar de vârf și de rezervă în această unitate.[22]
- Agregatele din centrale – condensatorii turbinelor necesită importante cantități de apă industrială de răcire, care este preluată din râul Trotuș,[8] prin rețeaua de apă de răcire[22] cu o captare pe albia râului, cu o priză de 13,4 mc/sec. și din lacul de acumulare Belci, de pe Râul Tazlău, cu o capacitate inițială de 12.500.000 m³. Pentru reținerea plutitorilor, circuitul hidrotehnic este prevăzut cu o casă a sitelor echipată cu 4 site rotative.[8] Apa are un conținut total de săruri între 570 și 920 mg/l. Această calitate de apă a determinat, în cadrul extinderii cu cazane de 140 ata, 570 °C, schimbarea soluției inițiale de tratare chimică a apei de adaos cu pretratare cu var, coagulare, decantare, filtrare mecanică și tratare Na-cationică în soluția de demineralizare totală cu tralare cu var, coagulare, filtrare mecanică, filtre H-cationice, filtre anionice și decarbonatare. Debitul instalației de tratare a apei prin demineralizare totală este de 520 m³/h, ceea ce este un debit foarte important pentru acest fel de instalații [22] În scopul realizării condițiilor de funcționare în circuit închis sau mixt, s-au construit 8 turnuri de răcire cu tiraj natural, fiecare având o capacitate de 10.600 mc/h, precum și 3 stații de pompe de circulație. Lungimea totală a canalelor și aducțiunilor deschise și închise este de cca. 35 km.[8]

La nivelul anului 1960, întreprinderile industriale de pe platforma petrochimică Borzești necesitau un debit de 2,5—2,8 m³/s apă industrială, care se asigurau din rețelele de apă proiectate si executate împreună cu cele pentru centrală.[16]
De asemenea CET livra combinatului chimic cantitatea de 60—80 m³/h apă tratată chimic prin demineralizare totală. În schimb, CET primea de la combinatul chimic circa 1 t/h lapte de var pentru tratarea apei de adaos la cazane, circa 90 m³/24h hidrogen pentru răcirea generatoarelor și acidul clorhidric necesar regenerării filtrelor schimbătoare de ioni.[16]
La centrală se întorcea o parte din condensatul aburului tehnologic trimis unităților industriale.[16]
C.T.E. Borzești este conectată la SEN prin stația electrică Gutinaș (cea mai mare din Moldova și N-E României), de 400/220/110 kV, situată la 6 km depărtare de centrală. Fiecare bloc de 210 kV este conectat la această stație printr-o linie electrică de 220 kV.[17]
Stația de transformare Gutinaș



Stația de transformare 400/220/110 kV Gutinaș este amplasată în comuna Ștefan cel Mare. Reprezintă cea mai mare stație de transformare din Moldova, reprezentând un nod al Sistemul Energetic Național (SEN) prin care se asigură alimentarea cu energie electrică a întregii zone de N-E a țării, precum și racordarea grupurilor din centrala termoelectrică Borzești și evacuarea puterii în SEN.[14]
La data de 31 decembrie 1955 a fost inaugurată prima linie de 110 kV din Moldova cu scopul de a evacua surplusul de energie electrică de la termocentrala Borzești spre Sistemul Energetic Național, abia în formare la acel moment.[15] Situată în afara zonei periclitate de poluare (la 2,7 km de Platforma Petrochimică Borzești, stația Gutinaș a fost construită atât pentru evacuarea puterii din Termocentrala Borzești, ulterior și pentru realizarea unei interconectări sigure în rețeaua de 110 kV existentă. S-au creat, la tensiunea de 220 kV, legăturile cu SEN prin LEA Gutinaș– Barboși și ulterior, în 1974, Gutinaș – Brașov și Gutinaș – Iași.[15]
Stația de transformare Gutinaș (inițial doar stație de interconexiuni)[15] a fost pusă în funcțiune pe 26 septembrie 1967[25], ca nod prin care trecea o linie de 220 kV. Apariția unității de transformare pe 110 kV a făcut ca stația să poată face distribuție de energie electrică.[15]
La 29 iulie 1963 s-a conectat LEA de 220 kV, de la Centrala Hidroelectrică „Stejarul” (Bicaz), peste Carpații Orientali, la Sângeorgiu de Pădure (actuala Stație Fântânele – Mureș). La 25 – 26 septembrie 1967 a fost inaugurată stația de 220/110 kV Gutinaș, cu amplasarea unui autotransformator (AT) de 200 megavoltamperi (MVA), care însă a fost pus în funcțiune la 30 iunie 1975. Atunci a apărut nivelul de tensiune de 110 KV la Gutinaș și aceasta s-a putut numi stație de transformare propriu-zisă.[15]
Stația a funcționat permanent la parametrii maximi, ceea ce a condus la uzura echipamentelor,[26] astfel, în anul 2005, stația a intrat într-un proces de retehnologizare, prin care s-au înlocuit echipamentul primar și secundar și s-a modificat schema de funcționare.[25] De asemenea, a fost realizat sistemul SCADA pentru teleconducerea întregii stații, atât de la nivel local, cât și de la nivel D.E.T., D.E.N. și Centru de Telecomandă si Supraveghere Instalații (C.T.S.I.) Bacău prin intermediul sistemelor de comandă control MICROSCADA și PACIS.[25]
Întregul proces de retehnologizare s-a încheiat în anul 2010, toate instalațiile aferente stației fiind modernizate și putând fi integral teleconduse.[25]
Unități de transformare:
- 2 x AT 400 MVA, 400/231/22 kV
- 2 x AT 200 MVA, 231/121/10,5 kV
- Stația de 400 kV: formată din 2 bare cu 1,5 întrerupătoare pe circuit (un întrerupător deservește 2 echipamente). La bare sunt racordate 3 LEA de 400 kV, 2 AT și BC. În stație este racordată o bobină de compensare (BC) de 100 MVAr.[14] Stația a fost construită în anul 1976[26][15] iar retehnologizarea a început în anul 2005[26], fiind pusă în funcțiune în anul 2006.[27] Celulele vechi au fost demontate integral și înlocuite cu celule noi cu grad de fiabilitate ridicat. Investiția corespunde trecerii la 400 kV a actualei linii Gutinaș–Bacău–Roman–Suceava, care a funcționat la 220 kV. De asemenea, stațiile Bacău Sud și Roman Nord au fost trecute la 400 kV, precum și stația Suceava. Stația Suceava este necesară pentru racordarea unei linii de 400 kV de la Bălți (Republica Moldova), pentru import de putere și tranzitarea acesteia spre zona deficitară Transilvania (stația Gădălin, Cluj).[26] Finanțarea modernizării stației 400 kV Gutinaș a venit din credite externe, din surse proprii și, în completare, din venituri cu destinație specială, iar pentru aceasta a fost încheiat un contract cu compania suedeză ABB Power. Investiția a beneficiat de finanțarea băncii de investiții Nordik Investment Bank. Valoarea contractului comercial a fost de 32,6 milioane de euro, din care 23 de milioane din împrumut bancar.[26]
- Stația de 220 kV: formată din 2 bare cu 1,5 întrerupătoare pe circuit (două echipamente sunt racordate momentan cu 2 întrerupătoare pe circuit). Stația a fost pusă în funcțiune în anul 1968[26] și retehnologizată, fiind pusă în funcțiune în anul 2008.[14]
- Stația de 110 kV: bară dublă secționată, două bare de transfer, 26 celule. Anul PIF: 1968 și 1973,[27][14] pusă în funcțiune în anul 1975.[26] Anul 1975 este important pentru întreprindere prin intrarea în exploatare a stației 110 kV realizată cu patru sisteme de bare, atât pentru racordarea Termocentralei Borzești, cât si pentru alimentarea noilor capacități de producție ale Platformei Petrochimice Borzești.[15] În anul 2007 a început retehnologizarea stației 110 kV cu modernizarea celor două celule 110 kV AT3 și AT4, iar în anul 2008 a fost retrasă din exploatare o parte din substația 110 kV. A a fost eliberat terenul adiacent prin demolarea echipamentelor vechi aferente stației 220 kV. Schema primară a stației 110 kV a fost simplificată, astfel încât cele două semistații vechi au devenit o singură stație cu o bară colectoare simplă secționată printr-o cuplă longitudinală. Datorită noii sale poziții, legătura dintre celulele retehnologizate 110 kV și autotransformatoarele AT3 și AT4 și stâlpii terminali ai LEA 110 kV s-a făcut prin cablu de 110 kV, cu excepția LEA 110 kV Chimic T1,[25] pentru a păstra primii stâlpi din afara stației, datorită pretențiilor funciare ale proprietarilor de teren din jur. Altfel, modernizarea stației s-a făcut pe același amplasament, ceea ce presupune multe provizorate, pentru că lucrările trebuiau făcute rapid, fără oprirea alimentării întreprinderii.[15] Retehnologizarea a luat sfârșit în anul 2010.[25]
Suprafața stației modernizate se restrânge pe o suprafață de teren mult mai mică, dar și în structura personalului, circa o treime dintre cei 190 de salariați fiind relocați în alte sectoare.[26]
Există un proiect de construcție a unei linii de 400 kV între Gutinaș și Smârdan, cu o lungime de 140 km, cu scopul de a asigura continuitatea alimentării cu energie a consumatorilor casnici și industriali din zona Moldovei (coridorul East Electricity) dar și pentru a conecta la rețea și producătorii de energie din resurse regenerabile din zona Dobrogei și Galați, unde sunt cele mai numeroase centrale eoliene din țară.[28]
În prezent Stația Gutinaș este legată la două linii de 400 kV (de la Smârdan și Brașov), care aduc, în special, energie electrică în regiunea Moldovei Occidentale. De acolo, o linie pleacă spre Bacău și ajunge la Suceava, spre Piatra Neamț și Vaslui – Iași.[15]
Istoric
.jpg.webp)
Amplasarea între localitățile Onești și Borzești a unul mare complex industrial petrochimic - aprobată prin H.C.M. nr. 1638/1952, parte integrantă a măsurilor luate de partid pentru dezvoltarea Moldovei, s-a dovedit a fl optimă pe criterii tehnice, economice și sociale, avându-se în vedere și bogățille economice apreciabile din bazinul Trotuș. În aceeași hotărâre se stipula necesitatea construirii unei centrale electrice de termoficare la Borzești, care urma să alimenteze cu energie electrică și termică noul complex industrial din Onești. Datele existente în anul 1951 arătau că necesarul de energie electrică în Moldova se ridica pentru anul 1955 la 1350 mil. KWh, adică de 5,6 ori mai mult decât întreaga producție a primului an al cincinalului 1951-1955.[3]
Execuția lucrărilor a început în toamna anului 1952 cu lucrările de organizare a șantierului,[16] în anul 1953 a început construcția termocentralei, pe platoul din dreapta râului Trotuș. Pe acest loc existau două case, a lui Leuștean Neculai și Anghel Gheorghe.[2] În anul 1955 a început montajul primului grup cazan-turbină de 25 MW, care a intrat în funcțiune în iunie 1956.[16]
Într-o primă etapă[5], în 1958, centrala a ajuns la o putere instalată de 75 MW (în 3 grupuri de câte 25 MW, la 100 ata, 510 °C). Față de profilul inițial de 100 MW (4 unități de 25 MW), s-a hotărât extinderea după primele 3 unități de 25 MW cu agregate mai puternice, de 50 MW, la parametrii de 140 ata, 570 °C. Cu trei astfel de agregate, centrala a atins puterea finală proiectată inițial de 225 MW.[16][2]
În martie 1960 s-a pornit primul grup turbogenerator de 50 MW, care funcționa la acel moment cu cazanele de 100 ata, 510 °C ale primelor grupuri. La începutul anului 1961, în urma punerii în funcțiune și a primului cazan de 420 t/h, 140 ata, 570 °C în curs de montaj, debitul instalat de abur a atins valoarea de 1050 t/h.[16]
Unitatea se încadrează la categoria CET-urilor mari, de importanță regională în ceea ce privește puterea electrică și deservind cu agent termic câteva mari întreprinderi amplasate în apropiere, fiind prima de acest fel din țară. Este de reținut că la masiva grupare a consumatorilor termici în jurul acestei centrale, au contribuit esențial considerentele energetice de a-i putea alimenta în condiții favorabile cu abur și energie electrică prin extinderea unor instalații existente.[29][2]
A urmat ulterior etapa a II-a a ascensiunii acestei unități în perioada 1960-1965, când puterea instalată a ajuns la 235 MW.[5]
Termocentrala a fost construită pentru a asigura energia electrică și termică industriei din această zonă, debitând totodată energie electrică și în sistemul național. Prin asigurarea prin termoficare, a căldurii necesare încălzirii orașului, Oneștiul a devenit primul oraș din țară complet termoficat. Iată ce scrie Geo Bogza, referitor la Termocentrala de la Borzești:[30]
„Pe valea Trotușului, un combinat chimic, un combinat petrochimic, o rafinărie de petrol și un întreg oraș primesc căldura de care au nevoie din cuptoarele termocentralei de la Borzești. Toată această parte a văii, în care au loc neobișnuite procese de producție, este străbătută ca de-o coloană vertebrală cu măduva fluidă și fierbinte, de țevile de oțel înfășurate în bandaje termice și suspendate deasupra pământului prin care aburul mereu sub presiune, mereu impulsiv, dă năvală spre locurile unde intervenția lui e necesară”.[30]
Întreprinderea Electrocentrale Borzești (Filiala Electrocentrale Borzești) este prima unitate industrială a cărei construcție a început pe Platforma Petrochimică Borzești, ca urmare a politicii de industrializare.[2]
La început, Centrala Electrică de Termoficare Borzești s-a constituit ca sector (exploatare), ce făcea parte din Energo-Combinatul nr. 3 Bacău. Derularea lucrărilor de investiții a fost urmărită de un Grup de supraveghere tehnico-financiară (actualul compartiment de investiții). În anul 1955 au fost organizate secțiile de exploatare (hidrotehnică, chimică, cazane, turbine, electrică), laboratoarele PRAM și AMC, precum și nucleele compartimentelor de reparații termomecanice și electrice. Pe baza prevederilor H.C.M. nr. 507/1958, în anul 1958 s-a înființat Întreprinderea centrale termoelectrice Borzești, subordonată Direcției generale pentru producerea și transportului energiei electrice din Ministerul Energiei Electrice și Industriei Electrotehnice.[8]
În anul 1963, în componența I.C.T. Borzești intră Termocentrala Comănești. În anul 1968: unitatea capătă denumirea de Întreprinderea Electrocentrale Borzești; în alcătuirea ei intră și C.E.T. Iași.[8]
S-a realizat la Întreprinderea Electrocentrale Borzești, intrarea în funcțiune, la 30 iunie 1968, a primului grup de 200 MW de la cea de a doua centrală și la 20 iunie 1969, a celui de-al doilea grup de 200 MW, ajunge în 1970, la o putere de 625 MW. Pentru a putea imagina puterea instalată la Întreprinderea Electrocentrale Borzești se impune o comparație între anii 1970 și 1938. În anul 1938 puterea instalată a tuturor centralelor electrice din țară era de 501 MW, iar în 1970, numai Întreprinderea Electrocentrale Borzești avea o putere instalată cu 124 MW mai mare decât toate centralele electrice din țară din 1938. Combustibilul de bază este un amestec de gaze de sondă, gaze reziduale tehnologice și gaz metan (pentru prima etapă) și păcură (pentru a doua etapă) care se aduce printr-o conductă de la rafinăria de petrol.[30]
În afară de puterea electrică, pentru satisfacerea consumatorului termic, s-au mai pus în funcțiune începând cu anul 1974 și până în 1980 5 cazane a 50 tone abur/oră și 3 cazane a 100 tone abur/oră. În etapa 1979-1980 au intrat în funcțiune încă 3 cazane a 100 tone abur/oră. În anul 1980 unitatea avea o putere termică instalată de 2198 G.cal/oră.[7]
În anul 1979 valoarea producției globale realizate a depășit de aproape două ori și jumătate producția realizată în anul 1965.[7]
Conform H.C.M. nr. 583/1969, din anul 1969 Întreprinderea Electrocentrale Borzești face parte din Centrala industrială pentru producerea energiei electrice și termice din Ministerul Energiei Electrice.[8]
În perioada 1971-1973 activitatea de reparații s-a desfășurat in cadrul Unității zonale de reparații, subordonată Întreprinderii Energoreparații București. În anul 1973 sectorul de reparații a revenit în întreprindere. În anul 1973 se înființează Liceul industrial electrotehnic cu profil industrial energetic nr. 1 din municipiul Onești și grădinița nr. 14 pentru copii lucrătorilor la I.E. Borzești.[31]
Datorită necesităților noilor dezvoltări de pe Platforma Petrochimică Borzești[5] s-a hotărât extinderea centralei Borzești cu o centrală termoelectrică de compensație.[8] Pe baza Hotărârii nr. 27/1978 a Biroului executiv al Consiliului de conducere al Ministerului Energiei Electrice, în anul 1978 în cadrul I. E. Borzești s-a înființat Termocentrala II Borzești, cu secții și ateliere de exploatare și întreținere.[8] În cincinalul 1971-1975 a început construcția centralei electrice de termoficare cu o putere finală planificată de 300 MW și din care s-au pus până în anul 1980 în funcțiune 100 MW pe hidrocarburi, urmând ca în perioadele următoare să se pună în funcțiune restul de capacitate pe cărbune.[5]
În anul 1979 puterea totală instalată a I.E. Borzești a ajuns la 1000 MW.[5] Colectivul Întreprinderii Electrocentrale Borzești era format din peste 700 angajați. Peste 60 % din cadre muncitorești și cu pregătire superioară erau dintre cele care aveau 10-15 ani vechime în unitate.[7] Printre primii lucrători au fost pregătiți la școlile profesionale cu profil energetic sau la alte întreprinderi industriale din Brăila, Galați, Iași, București[32] sau Comănești.[33]
În anul 1996 filiala Electrocentrale Borzești avea o putere instalată de 855 MW și realiza o producție zilnică de 13,5 milioane de Kwh și 26.000 Gcal energie termică.[34]
Situația actuală

În anul 2007, Termoelectrica a intenționat să realizeze noi capacități de producție a energiei la sucursala Borzești. La licitația organizată în acest scop, s-au înscris șapte companii sau consorții: Enel (Italia), Electrabel (Belgia), AES Corporation (SUA), Gaz de France, ČEZ (Cehia), E.ON (Germania) și un consorțiu format din Electricite de France International și Edison (Italia).[35] Intenția a rămas nepusă în practică.
La începutul anului 2010 GDF-Suez a anunțat că a terminat studiul de fezabilitate pentru o centrală de 400 MW. Proiectul, a cărui valoare era de circa 400 de milioane de euro, era primul care avea studiul de fezabilitate terminat, iar valoarea investiției urma să ajungă la circa o jumătate de miliard de euro. Grupul de la C.E.T. Borzești trebuia să funcționeze cu gaze și să fie deținut, în proporție majoritară, de Electrabel Belgia, controlată de GDF-Suez, iar Termoelectrica, proprietarul C.E.T., cu activele deja existente și cu infrastructura de la Borzești, să aibă o participație minoritară în proiect.[36]
În anul 2014 lichidatorul companei de stat Termoelectrica, Mușat & Asociații-Restructuring & Isolvency SPRL, a organizat licitație deschisă cu strigare pentru vânzarea Centralei Termoelectrice din Borzești. Prețul de pornire a licitației era de 96,8 milioane de lei (21,8 milioane de euro), cu TVA dar a rămas nevândută, în timp ce activele centralei termoelectrice Doicești, Dâmbovița și stația intermediară de comprimare din comuna Aninoasa, Dâmbovița, au fost vândute firmei European Energy Communications, la prețul de 60,89 milioane de lei (13,8 milioane de euro). Termoelectrica avea, la intrarea în dizolvare, 12.000 de angajați, trei filiale (Electrocentrale Mintia, Electrocentrale București și Electrocentrale Galați) și patru sucursale (Paroșeni, Doicești, Borzești și Brăila).[36]
Vedere de ansamblu asupra primelor două unități dezafectate și parțial demolate.jpg.webp)
Vedere asupra unității 2x210 MW, parțial demolată
Linii Electrice Aeriene de 220 kV
Linie Electrică Aeriană de 110 kV
Vezi și
Note
- Planul de analiză și acoperirea riscurilor de pe teritoriul județului Bacău, Consilul Local Bacău, 2015, A.3. S.C. ENERGY BIO CHEMICALS S.A. BUCUREȘTI – SUCURSALA CAROM ONEȘTI, Centre vulnerabile, p. 146/274
- Rozalia și Teodor Verde; Monografia Municipiului Onești – în date și evenimente, iulie 2003, pag. 45
- Ing. Spătaru, Alexandru (). Centrala electrică de termoficare Borzești – Monografie. Întreprinderea Poligrafică Bacău. p. 26.
- Rozalia și Teodor Verde; Monografia Municipiului Onești – în date și evenimente, iulie 2003, pag. 44
- Rusu, Pintilie (). Județele Patriei – Județul Bacău. Sport-Turism București. p. 155.
- Rozalia și Teodor Verde; Monografia Municipiului Onești – în date și evenimente, iulie 2003, pag. 53
- Rusu, Pintilie (). Județele Patriei – Județul Bacău. Sport-Turism București. p. 156.
- Ing. Spătaru, Alexandru (). Centrala Electrică de Termoficare Borzești. Întreprinderea Poligrafică Bacău.
- Prof. dr. ing. Victor Vaida; CENTRALELE TERMOELECTRICE ȘI DE TERMOFICARE ÎN ROMÂNIA Arhivat în , la Wayback Machine., Muzeul Național Tehnic „Prof. Ing. Dimitrie Leonida”. București, 17 mai 2014, III/1.
- Rozalia și Teodor Verde; Monografia Municipiului Onești – în date și evenimente, iulie 2003, pag. 59
- electrica.ro. „Istoric”. Accesat în .
- termoelectrica.ro (WebArchive). „SE Borzesti – Sucursala Electrocentrale BORZESTI”. Arhivat din original în . Accesat în .
- agerpres.ro, 17 ianuarie 2014. „Șapte termocentrale vor fi scoase din funcțiune până în 2019, din cauza emisiilor poluante”. Arhivat din original la . Accesat în .
- wikimapia.org, descriere preluată de pe site-ul stbc.ro. „Stația de Transformare Gutinaș (pe hartă)”. Accesat în .
- zdbc.ro, 27 mai 2010. „Prima linie electrica de inalta tensiune din Moldova implineste 55 de ani”. Accesat în .
- Centrala electrică și de termoficare Borzești ..., Energetica, 1960, pag. 571
- adevarul.ro, Dan Străuț, 14 martie 2013. „Statul lichidează termocentralele Doicești și Borzești, aflate pe lista neagră a FMI”. Accesat în .
- Planul de analiză și acoperirea riscurilor de pe teritoriul județului Bacău, Consilul Local Bacău, 2015, A.6. S.C. TERMOELECTRICA S.A. BUCUREȘTI - SUCURSALA ELECTROCENTRALE BORZEȘTI, Zone critice generatoare de risc, p. 161/274
- Planul de analiză și acoperirea riscurilor de pe teritoriul județului Bacău, Consilul Local Bacău, 2015, A.6. S.C. TERMOELECTRICA S.A. BUCUREȘTI - SUCURSALA ELECTROCENTRALE BORZEȘTI, Principalele substanțe periculoase, p. 162/274
- Centrala electrică și de termoficare Borzești ..., Energetica, 1960, pag. 572
- Centrala electrică și de termoficare Borzești ..., Energetica, 1960, pag. 573
- Centrala electrică și de termoficare Borzești ..., Energetica, 1960, pag. 574
- Centrala electrică și de termoficare Borzești ..., Energetica, 1960, pag. 576
- Centrala electrică și de termoficare Borzești ..., Energetica, 1960, pag. 577
- desteptarea.ro, Petru Done, 7 octombrie 2017. „Stația de transformare a energiei electrice Gutinaș a împlinit 50 de ani”. Accesat în .
- zdbc.ro, 4 noiembrie 2008. „Transelectrica – o lectie de tehnologie si de istorie a energeticii, la Gutinas”. Accesat în .
- stbc.ro, Transelectrica – Sucursala de Transport Bacău (link nefuncțional). „Stația de transformare Gutinaș”. Accesat în .[nefuncțională]
- viata-libera.ro, Ovidiu Amălinei, 2 noiembrie 2014. „Proiect major pentru viitorul Galațiului: O nouă magistrală energetică va deservi parcurile eoliene”. Accesat în .
- Dezvoltarea termoficării în cadrul planului de electrificare pe perioada 1951-1960, Prof. Ing. Ioan D. Stăncescu; „Energetica”, anul 8, Nr. 12, decembrie 1960, p. 601-602
- Verde Rozalia, Verde Teodor (iulie 2003). Monografia Municipiului Onești - în date și evenimente. p. 44-45.
- Ing. Spătaru, Alexandru (). Centrala electrică de termoficare Borzești – Monografie. Întreprinderea Poligrafică Bacău. p. 86.
- Ing. Spătaru, Alexandru (). Centrala electrică de termoficare Borzești – Monografie. Întreprinderea Poligrafică Bacău. p. 93.
- Ing. Spătaru, Alexandru (). Centrala electrică de termoficare Borzești – Monografie. Întreprinderea Poligrafică Bacău. p. 94.
- Rozalia și Teodor Verde; Monografia Municipiului Onești – în date și evenimente, iulie 2003, pag. 60
- ziare.com, 22 ianuarie 2008. „CEZ a depus o oferta pentru modernizarea Termocentralei Borzesti”. Accesat în .
- zdbc.ro. „Termocentrala Borzești a fost scoasă la vânzare pentru 22 milioane euro”. Accesat în .
Bibliografie
- ro Consiliul Local Bacău, ANEXA la Hotărârea nr. 90 din 30.06.2015 – Planul de analiză și acoperirea riscurilor de pe teritoriul județului Bacău Arhivat în , la Wayback Machine., 2015
- ro Dr. Pintilie Rusu (coordonator); Stelian Nanianu, Nicolae Barabaș, Ioan Mirea, Dumitru Zaharia, Gheorghe Bucur, Vasile Florea (colaboratori); Județele Patriei – Județul Bacău, Editura Sport-Turism, București (1980), pp. 155.
- ro Ing. Spătaru, Alexandru; Centrala electrică de termoficare Borzești – Monografie, Întreprinderea Poligrafică Bacău, 1983, pp. 23-30, 86-94.
- ro Rozalia și Teodor Verde; Monografia Municipiului Onești – în date și evenimente Arhivat în , la Wayback Machine., iulie 2003, pp. 44-60.
Legături externe
- Filmare TVR cu Termocentrala Borzești, 1973, euscreen.eu
- Filmare TVR cu construcția LEA Borzești-Iași, 1973, euscreen.eu
- Galerie foto Termocentrala Borzești în anul 2011 Arhivat în , la Wayback Machine., onestiul.ro
