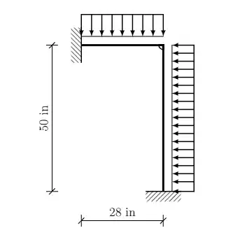
I am trying to add a label "100 lb/in" on both of the load distributions. Every time I attempted it, the labels pop up in places I did not intend them to be. I want them to be on top for the horizontal beam and to the right for the vertical beam. Furthermore, I am trying to add "A" at the bottom of the horizontal beam and "B" to the vertical one to the left. How can I accomplish this. Thank you
\documentclass[12pt,letterpaper]{article}
\usepackage{stanli}
\begin{figure}
\centering
\begin{tikzpicture}
\scaling{.1};
\point{a}{0}{50};
\point{b}{28}{50};
\point{c}{28}{0};
\support{3}{a}[-90];
\support{3}{c};
\beam{4}{a}{b}[0][1];
\beam{4}{b}{c}[1][0];
\hinge{2}{b}[a][c][0];
\lineload{2}{a}{b} [0.75][0.75][.125];
\lineload{1}{b}{c} [0.75][0.75][.0055];
\dimensioning{1}{a}{b}{-1}[$28$ in];
\dimensioning{2}{c}{b}{-1}[$50$ in];
\end{tikzpicture}
\end{figure}
\end{document}


stanlipackage you're using? If yes, please that tag instead of (or in addition to) the much more generaltikz-pgftag. And doesn't hurt if you make a complete example (from\documentclassto\end{document}) :) Then those who want to test can just copy-paste the entire code without making any modifications at all. – Torbjørn T. Sep 26 '20 at 17:16