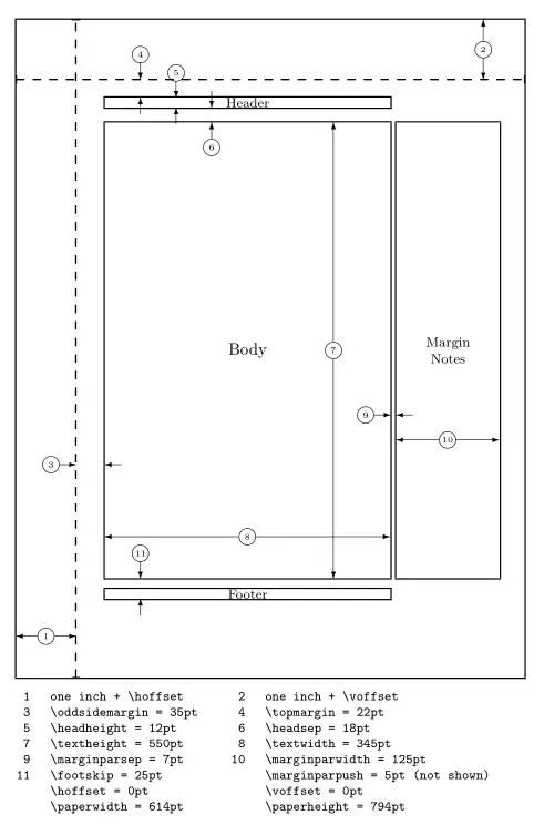
Maybe package layout will help. It provides the command \layout which inserts one (onesided document) or two (twosided documents) pages that show the relevant sizes of the current page layout.
\documentclass{book}
\usepackage{geometry}% needed if the format of the document differs from the settings of your TeX system
\usepackage{layout}
\begin{document}
\layout
\end{document}
Odd page:

Even page:

Or you can use package scrlayer. Then you can define a new page style using a layer with contents=\layercontentsmeasure.
\documentclass[a4paper]{book}
%\usepackage{geometry}
\usepackage{blindtext}
\usepackage{scrlayer}
\DeclareNewLayer[
foreground,
innermargin,
contents=\layercontentsmeasure
]{measurelayer}
\DeclareNewPageStyleByLayers{measurestyle}{measurelayer}
\begin{document}
\chapter{A Chapter}
\Blindtext
\pagestyle{measurestyle}
\clearpage
\Blindtext
\clearpage
\pagestyle{headings}
\blinddocument
\clearpage
\end{document}

There are other predefined layer areas like topmargin, head, headsep, textarea,... But you can also define the size and the position of a layer:
\DeclareNewLayer[
foreground,
hoffset=1cm,
voffset=.5cm,
width=2cm,
height=10cm,
contents=\layercontentsmeasure
]{measurelayer}

Or you can modify a predefined layer area:
\DeclareNewLayer[
foreground,
topmargin,
addheight=\dimexpr\headheight+\headsep\relax,
contents=\layercontentsmeasure
]{measurelayer}

gridunit=in, that's why the numbers are so strange. – AndreKR Jun 12 '19 at 18:14