This puzzle is part of the ‘Twelve Labours’ series, but can be solved independently. Previous instalments can be found here: Prologue | 01 | 02 | 03 | 04 | 05 | 06
Emerging from the barbers with a new look that he really hadn’t planned on, Hercules was relieved to see from his to-do list that he was finally halfway through his labours for the day. But time was ticking on...
Hauling his ever-heavier flatbed trolley quickly up the road to Cleats ‘N’ Balls, he was rather out of breath when he walked in through the door. “Cleats” – as it was often known – stocked all kinds of sporting supplies and also doubled as the reception area for the golf course that lay just behind it. It had been run by the same family for generations, the current manager being a young woman called Pasiphaë, who truly loved this job.
“Here are the team kits your mother ordered,” she said with a huge smile, handing Hercules a bundle of shirts, shorts and socks. “The boys will look super smart in those. Can I interest you in a game of golf while you’re here? On the house...”
“No, I’ve got a lot to be getting on with today, thank you,” replied Hercules, shortly.
“Your mother will be disappointed,” said Pasiphaë, with a sly look and a raised eyebrow. “After all – there’s something else she ordered too... and I’ll only tell you what it was if you can beat our golf course.”
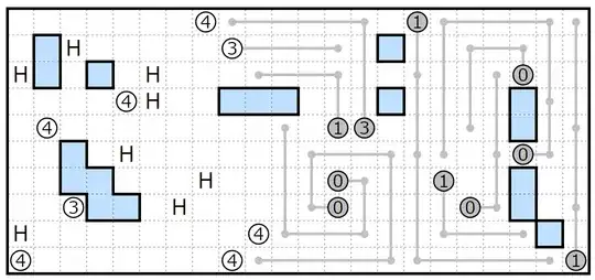
Hercules closed his eyes for a moment and breathed deeply, before Pasiphaë gestured towards a map on the wall:
“This is our Herugolf course,” she explained, before pointing out the list of rules on the wall nearby:
Rules of Herugolf: (Adapted from Nikoli)
Move (hit) all circles (balls) one or more times, and bring them to a cell with a red H (hole). Each ball must end up in a different hole.
Show the movement of a ball by an arrow, with the tip of the arrow in the cell where it stops. The arrow cannot cross other balls, holes, or arrows.
When it is first hit, a ball travels across as many cells as the number inside it, in a straight line, either vertically or horizontally (no diagonals, no changing direction partway through a move).
Each subsequent shot follows the same rules but crosses 1 cell fewer than the previous shot (e.g. a ball numbered ‘3’ crosses 3 cells on its first shot, 2 on its second, and 1 on its third). The direction of travel may (but doesn’t have to) change after (not during) a shot. When the next shot length becomes 0, or the ball stops at a hole, the ball cannot move any further.
A ball cannot leave the grid (“out of bounds”) and cannot stop at the end of a shot in a water hazard or sand trap (shaded cells), although it may pass through them if the shot ends on the grass (unshaded cells).
“If you can complete our course you’ll receive a hint as to where you might usually find this 10-letter item – from that you should be able to work out what it is.” Pasiphaë reached behind the counter and snatched up a sheet of paper, which she passed to Hercules. “You’ll also be needing one of these more detailed map printouts to guide you through the course. Good luck!”
TASK: Logically deduce the solution to the Herugolf puzzle (below) and resolve the resulting hint to learn what other item (singular) Hercules’ mother has ordered from Cleats ‘N’ Balls. Please explain your reasoning with diagrams to show the logical steps that led you to the solution.







