The issue: CCI (Co-channel Interference) on 2.4GHz.
The Environment: 40 seats per classroom. Higher-ed, so extremely mixed client base. AP-on-a-stick set to 24Mb lowest Mandatory data rate & lowest Tx power setting (2 dBm)
The Problem: Needing to disable 2.4GHz radio's to achieve the required density does not seem optimal. Am I going about this wrong?
The plan:
I've used the following formula for AP density and number of radios:
- TTc = Target TCP/UDP Throughput, per client
- TCc = Throughput Capabilities of client
- CUm = Maximum realistic Channel Utilization
c = Number of clients
TTc / TCc / CUm * c = # of Radios
At 40 seats per classroom, assuming each student has a laptop and a smartphone or tablet, with a target throughput of 3Mbps for laptops & 1Mbps for smartphone/tablets:
- Laptops: 3Mbps / 150 / .8 * 40 = 1
- Smartphone/Tablet: 1Mbps / 30 / .8 * 40 = 1.6
Total radios needed per classroom = 2.6. Each AP having 2 radios, this brings me to 1 AP per classroom; if rounding down. All classrooms are in use, and fully populated every day. Current client base shows about 30% 5GHz capable, campus-wide. I expect this number to increase rapidly as most clients are becoming 5GHz capable.
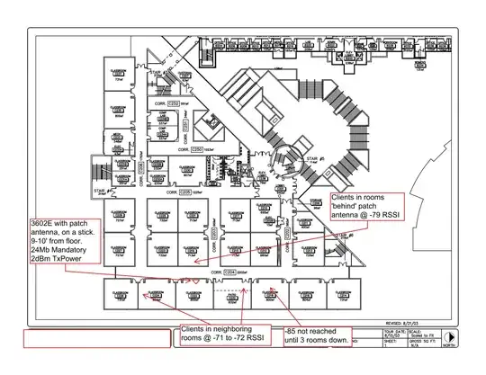
Antenna in use: AIR-ANT2566P4W-R (Dual-band patch)
PDF picture is result of placing the AP/Antenna at the front of classroom (facing East, or away from the hallway). There is very little attenuation between the rooms (sheetrock walls). This is a 3-story building, with same layout on each floor.
Current plan:
One AP per classroom, with patch antenna mounted facing east, for classrooms which have an exterior wall (see diagram), except using Mechanical down-tilt on first floor to reduce the signal in the rooms 'behind' the Anetanna. 2nd & 3rd floors have antenna mounted as drawn, w/ no downtilt. Using 20MHz 5GHz channels, and disabling some of the 2.4GHz radio's, to reduce CCI.
Interior classrooms will utilize same patch antenna, again using down-tilt on first floor and not on upper floors. Disabling some of the 2.4GHz radio's. If down-tilt is utilized on 2nd/3rd floors, the signal penetrates the floors too much.
Options I've considered:
- Purposefully creating attenuation 'behind' the antenna (mesh on wall, RF blocking paint etc.) to reduce the signal 'behind').
- Using non-Cisco antenna, with a better front-to-back ratio, which would reduce CCI as a result of the radiation of signal 'behind'. Not sure if an equivelant one exists. Essentially, I'd benefit from a similiar radiation patter, minus the back-lobes.
- Using internal antenna, and just disabling more 2.4GHz radio's (ea. antenna is ~500$)
The picture represents the results of having an antenna mounted in room 222, pointing out/east/towards the exterior wall; and client RSSI readings from various locations.
