Biserica reformată din Tășnad

Biserica Reformată din Tășnad a fost ridicată în anul 1476, în perioada lui Ladislau Geréb, episcop de Alba Iulia și rudă a regelui Matei Corvin. Biserica reformată a orașului Tășnad, centru de protopopiat pe parcursul evului mediu, și-a păstrat în ansamblu aspectul original, fiind înscrisă pe lista monumentelor istorice. Biserica se evidențiază în rândul bisericilor sală din târgurile Transilvaniei, prin dimensiunile sale considerabile și lungimea corului, acesta din urmă amintind de planurile bisericilor medicante.

Biserica Reformată Tășnad
Poziționare
Coordonate🌍 ({{PAGENAME}})
LocalitateTășnad
ȚaraRomânia
Adresa445300 Tășnad, str. Ștefan cel Mare nr. 1., jud. Satu Mare
Edificare
Stil artisticBaroc
Data începerii construcției1476
Înălțime12,2 m
Clasificare
Cod LMISM-II-m-B-05360

Edificiul se compune dintr-o navă dreptunghiulară de 12,5x27 m și un cor de 14,3m lungime. Zidurile navei și ale corului au și acum ferestrele decorate cu muluri splendide. Construcția a fost preluată de reformați în secolul al XVI-lea. Ulterior, în 1660, în timpul invaziei turcești, a fost grav avariată. Turnul vestic, baroc, s-a construit la începutul secolului al XIX-lea, iar porticul sudic mai târziu, în formă neogotică.[1]

Istoric

Inițial biserica deservea comunitatea romano-catolică, dar în secolul al XVI-lea, în urma trecerii unui număr mare de credincioși la cultul protestant, a devenit reformată. Clădirea a fost avariată grav în 1660, în timpul atacului turcilor și nu a mai fost folosită aproape 100 de ani. Restaurarea bisericii medievale s-a încheiat în 1770, iar ulterior a fost renovată de mai multe ori. Turnul a fost ridicat în perioada 1814-1822, în stil baroc nou, iar în interiorul său se află două clopote. Clopotul mic s-a inaugurat în anul 1796 și a fost înlocuit în 1843, iar cel mare s-a turnat în 1836 și a fost înlocuit în 1923. Orga a fost realizată în anul 1871 de Jozsef Loyl din Viena.

Biserica Reformată din Tășnad

În 2011, în turnul bisericii, s-a descoperit o ladă veche, datând din 1804, în care au fost găsite 31 de monede de argint, 54 de bronz și 50 de scoici cu pete aurii. Monedele datează din secolul al XVII-lea și au fost expuse la muzeul orașului.[2]

Biserica avea hramul Sf. Mihail – la fel ca și catedrala de la Alba Iulia –  imaginea sfântului figurând și pe pecetea vicarului.  În șirul parohilor de Tășnad sunt cunoscuți nominal relativ mulți: Vicențiu atestat în 1316 și între 1341-1342, Mihail în 1402 (exercita și funcția de vicar), Simon în 1426, Ștefan în 1435, Luca în 1439, Ștefan Forrói între 1455 și 1456,  Anton în 1460,  Mihail în 1468,  Mihail Hercegszántói în 1486 (exercita și funcția de vicar, fiind atestat anterior ca arhidiacon de Hunedoara și canonic la Buda),  Vicențiu în 1499 și în 1507, Andrei în 1512 (exercita și funcția de vicar), Grigore în perioada 1520-1523 (exercita și funcția de vicar). Sunt menționați apoi altariștii Albert, Paul și Ambrosie în 1417, în 1494 viceparohul Ștefan, prezbiterii Ladislau și Ștefan, capelanul Francisc, scolasticii Mihail și Emeric, iar în 1517 este atestat capelanul Emeric.

Vicariatul presupunea și cunoștințe juridice solide, astfel că deținătorii acestei funcții erau de regulă persoane cu studii superioare. În 1494 spre exemplu în poziția de vicar de Tășnad și arhidiacon de Crasna îl găsim pe Jakobus de Wienna, doctor medicorum et artium;  în perioada 1520-1523 parohul și vicarul de Tășnad era Grigore Sziléziai, decretorum doctor, care anterior urmase cursuri în Italia.

Pe lângă biserica parohială, la Tășnad s-a construit la începutul secolului al XVI-lea și o capelă. În 1508 capitlul de la Alba Iulia i-a încuviințat lui Petru (fiul lui Ioan Csehi Vajda), convertit de la ortodoxie la catolicism, să construiască la capătul străzii Szarvad o capelă – sacellum seu capellam illam lapideam – închinată Sf. Ioan Evanghelistul. Aceasta avea să fie subordonată autorității parohiei și urma să slujească convertirea schismaticilor. În 1520 în fruntea capelei este atestat ca rector Blasius, în același timp locțiitorul vicarului.

Fotografie de epocă a bisericii reformatedinTășnad

Rangul înalt al bisericii parohiale justifică numărul mare de altare care funcționau în interiorul acesteia. Izvoarele care ne stau la dispoziție documentează existența a 15 altare, dedicate după cum urmează: Sf. Ecaterina (1460, 1507, 1517, 1520, 1543), Tuturor Sfinților (1507, 1543), Morților (1507, 1517, 1543), Sf. Treimi (1507, 1543), Corporis Christi (1507, 1517), Sfântului Duh (1507, 1517), Sf. Arhanghel Mihail (1507, 1543), Mariei Magdalena (1507), Sf. Ioan Botezătorul (1517, 1543), Sf. Apostoli Petru și Pavel (1517), Înălțării Fecioarei (1543), Sf. Nicolae (1543), Schimbării la Față (1543), Regelui Sf. Ștefan (1543) și Sf. Cruci (1543).

Cu toate că nu se cunoaște ctitorul niciunui altar, presupunem că fondatorul era în majoritatea cazurilor vicarul sau episcopul. Singura donație episcopală atestată documentar este cuprinsă în testamentul lui Francisc Várday din 1524, care lăsa bani și produse parohiei și  preotului acesteia.  Un document emis în 1468 menționează bunurile donate de Margareta, văduva lui Mihail Dombói, în favoarea bisericii din Tășnad.  În lista impozitelor din Tășnad întocmită în 1549 au fost înregistrate și 18 case aparținând clericilor, acestea constituind probabil, cel puțin o parte a lor, locuințele altariștilor.

Doctrinele Reformei s-au răspândit foarte devreme în târg, datorită în mare măsură activității lui Ștefan Szegedi Kis, care întors de la studii din străinătate, s-a angajat ca dascăl începând cu anul 1544. Activitatea sa a determinat pe episcopul și custodia franciscană să trimită călugări franciscani la Tășnad pentru apărarea credinței. În 1542 este atestat aici Valentin Nádasdi, iar în perioada 1548-1550 Andrei Szántói.  Nu este exclusă posibilitatea conviețuirii ambelor culte religioase în biserica parohială medievală pentru încă o perioadă după secularizarea bunurilor episcopiei. În orice caz biserica parohială mai funcționa în anii de după 1560.[3]

Descrierea edificiului

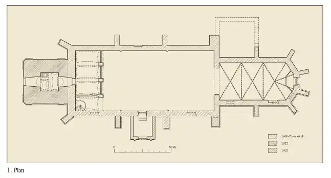
Cel mai mare lăcaș de cult medieval din fostul comitat al Solnocului de Mijloc a fost edificat pe ridicătura de teren care constituie marginea dinspre Câmpia de Vest a Dealurilor Sălajului. Turnul bisericii domină panorama dinspre Valea Ierului. Edificiul se compune dintr-o navă dreptunghiulară de 12,5 ~ 27 m și un cor de 14,3 m lungime. Acesta din urmă este format din trei travee și se încheie la răsărit cu cele cinci laturi ale unui octogon. Fațada vestică este dominată de turnul scund, aparent cu trei niveluri, construit în 1822 în stilul barocului tardiv. Laturii sudice a bisericii i s-a adosat un portic neogotic. Inițial, în vecinătatea nordică a corului se situa o sacristie mare, cu suprafața de 7,6 ~ 8 m, ale cărei fundații au fost descoperite recent. Atât corul cât și nava sunt sprijinite de contraforturi înalte, cu câte două trepte, amplasate oblic pe colțuri, respectiv perpendicular în dreptul arcului de triumf. Zidurile în elevație au fost ridicate din cărămidă, doar ancadramentele golurilor sunt cioplite din gresie. Fațada sudică a navei este străpunsă de trei ferestre dispuse câte una în fiecare segment delimitat de contraforturi. Pe fațada sudică și pe închiderea corului ferestrele sunt amplasate în mod similar, în timp ce fațada nordică a bisericii nu prezintă nicio fereastră. Turnul baroc acoperă aproape integral fațada vestică originală a bisericii. Fereastra încheiată în arc frânt din axul fațadei a fost parțial înzidită.[4][5]

Forma și dispunerea ferestrelor, deschiderile tripartite, cu glafurile neprofilate, încheiate toate la aproximativ aceeași cotă, conferă un aspect unitar edificiului. Ferestrele corului sunt proporțional mai înguste și au parapetul cu cca. 80 cm mai înalt în comparație cu cele din navă. Porticul modern acoperă jumătatea inferioară a ferestrei din spatele acestuia. Menourile lipsesc la toate ferestrele bisericii. Stilul mulurilor diferă. La ferestrele navei se îmbină în compoziții simetrice două-trei motive flamboiante mai mari, care înglobează la rândul lor motive secundare, asemănătoare unor oculi. În cazul ferestrelor din cor întâlnim muluri mai simple, compuse în primul rând din triunghiuri cu laturile arcuite, dar lipsesc complet motivele flamboiante.

Planul bisericii reformate din Tășnad

În zilele noastre biserica are trei porți, dintre care aceea de sub turn și cea sudică putând avea premise medievale. Poarta de pe latura răsăriteană a corului a fost amenajată la începutul secolului al XX-lea. Biserica medievală avea un portal cu ancadrament din piatră și în axul central al fațadei nordice a navei.

În prezent nava (24,3 ~ 10,7 m în interior) este tăvănită, dar s-au păstrat semicoloanele și arhivoltele bolții originale care era compusă din trei travei. Semicoloanele suple pornesc de la nivelul solului. Nervurile profilate cu scotii se desprind de pe elementele de sprijin iar  arhivoltele bolții nu coboară direct pe semicoloane, ci pe capitelurile de epocă modernă ale acestora, compuse din echină și abac. În colțurile navei, în locul semicoloanelor s-au utilizat console semicilindrice, păstrate însă foarte fragmentar. Nava este delimitată de cor printr-un arc de triumf înalt, încheiat în arc frânt, sprijinit pe stâlpi cu muchiile teșite. Corul are proporții mult mai spectaculoase decât nava, cu lățimea de 6,6 m și înălțimea aproape dublă, de 12,2 m (cât înălțimea navei). Bolta în cruce pe ogive a corului pornește la înălțimea considerabilă de 7,8 m. Nervurile acesteia se desprind din console identice (exceptând cele din colțurile vestice), cu secțiunea poligonală, profilate cu câte un listel respectiv un tor cuprins între cavete. Fiecare consolă este decorată cu câte un scut gol, ascuțit la bază. Ogivele profilate cu cavete care formează bolțile corului se întâlnesc în chei de boltă decorate tot cu scuturi goale, cu excepția celei din traveea răsăriteană. Între scuturile din cor, unul singur – cel de pe prima consolă a peretelui nordic – poartă și blazon. În partea superioară a câmpului despicat apare anul 1476, sculptat în relief, dedesubt, cartierul din dreapta heraldică este fasciat cu cinci brâuri, cel din stânga fiind gol.

Planul longitudinal al bisericii reformate din Tășnad

În cursul cercetărilor preliminare de parament, efectuate în 2010, s-au descoperit închiderea sediliei amenajate în peretele sudic, respectiv, tabernacolul și ancadramentul medieval al ușii vechii sacristii, aflate pe peretele nordic. Nișa tabernacolului se încheia într-un arc în acoladă decorat cu motive vegetale, fiale și fleuroane.

Șarpanta de tip medieval a bisericii reprezintă una dintre cele mai frumoase exemple ale genului din Transilvania, însă nu avem repere pentru datarea acesteia.

Se pare că limita superioară a cronologiei relative a construcțiilor trebuie stabilită în anul 1476, înscris pe consola din cor, datare susținută și de analiza stilistică a detaliilor plastice din biserică.

Rolul esențial în edificare trebuie atribuit probabil vicarilor, în primul rând lui Grigore Eszenyi care a ocupat această funcție între 1457-1468, respectiv lui Simon decretorum doctor, parohului de Bistrița, numit în fruntea vicariatului în 1470.

Biserica din Tășnad se evidențiază în rândul bisericilor sală din târgurile Transilvaniei, prin dimensiunile sale considerabile și lungimea corului, acesta din urmă amintind de planurile bisericilor aparținând ordinelor mendicante. Amploarea corului se justifică pe de-o parte, probabil, prin rangul important al bisericii și dimensiunea corpului clerical (trebuie menționați în primul rând preoții altariști ai bisericii), iar pe de altă parte prin pretențiile de reprezentare. Aceleași motivații explică și dimensiunile importante ale sălii sacristiei destinată probabil de la bun început ca loc de întrunire a scaunului de judecată al vicarului.[6][7][8][9][10]

Note

  1. Kinces, Diana (). Tășnad. Ghid cultural - istoric. Editura Muzeului Sătmărean. p. 10.
  2. „destepti.ro”. Accesat în .
  3. „temple-tour.eu”. Accesat în .
  4. „Enciclopediavirtuala”. Arhivat din original la . Accesat în .
  5. Bunyitay, Vince (). Szilágymegye középkori műemlékei. pp. 28–29.
  6. Mór, Petri (). Szilágy vármegye monográfiája, I,. p. 608.
  7. Jolán, Balogh (). A későgótikus és korarenaissance művészet, In: Magyar Művelődéstörténet. p. 531–532.
  8. Vătășianu, Virgil (). Istoria artei feudale în Țările Române. p. 549.
  9. Entz, Géza (). In Szolnok-Doboka műemlékei. p. 206.
  10. Emődi, Tamás (). Tasnád, református templom, In: Középkori építészet Szatmár vármegyében. p. 311–319.
This article is issued from Wikipedia. The text is licensed under Creative Commons - Attribution - Sharealike. Additional terms may apply for the media files.