Biserica de lemn din Porț
Biserica de lemn din Porț se află în localitatea cu același nume din vestul județul Sălaj, oferind privitorului, de pe ridicătura pe care se află, o largă vedere spre valea Barcăului și mai departe spre Bihorul vecin. Amplasată aproape de cimitir, în marginea estică a satului, biserica este datată în anul 1792 prin o inscripție ce se găsește încrustată pe grinda superioară a ancadramentului ușii de intrare în naos. Având dimensiuni modeste, biserica se evidențiază prin decorul său pictat, cu o cromatică bogată[1], cu influențe baroce[2], realizat fiind de un pictor, se bănuiește, ce provine din mediul urban[1]. Biserica este înscrisă pe noua listă a monumentelor istorice sub codul LMI: SJ-II-m-B-05098[3].

Istoric

Tradiția păstrată despre înființarea satului Porț spune că această localitate a fost întemeiată de patru familii venite din satul vecin, Marca[4]. Fără a se păstra documente cu privire la momentul înființări satului, primele mențiuni ale localității datează din sec. al XIV-lea, mai exact în anul 1393- din documentele de atestare rezulta ca denumirea era de Olah Porcelany - ( chestiune interesanta ce ar atesta o activitate de olarit recunoscuta la mare distanta; Argila este prezenta in zona, ceea ce poate reprezenta o materie prima de buna calitate), când localitatea Porț este subiectul unui schimb de moșii de la un proprietar la altul[5]. După alte surse, prima atestare documentară a localității are loc abia în anul 1477[6]. Dincolo de aceste surse care atestă localitatea, trebuie menționat faptul că localitatea lipsește atât din cele trei conscripții cu caracter religios realizate în secolul al XVIII-lea, cele din anii 1733, 1750 și 1760-1762 dar și din harta întocmită cu ocazia primei ridicări topografice militare austriece din anii 1769-1773. Ce fel de evenimente au condus la aceste omisiuni nu se cunoaște, cert este faptul că doar peste aproximativ douăzeci de ani, în anul 1792, un eveniment deosebit a avut loc în legătură cu biserica din localitate.
Se bănuiește că acest eveniment ar fi tocmai terminarea bisericii[7], ocazie cu care a fost realizată și inscripția ce se păstrează în partea superioară a trecerii din pronaos în naos. Legat de momentul edificării bisericii, în Schița Monografică a Sălagiului este dat ca an al construirii acesteia, anul 1658[4].
În 1867, parohia Porț ținea de protopopiatul Crasnei, vicariatul Silvaniei și avea ca preot paroh pe Teodor Bruchental. Este amintită biserica, de lemn, având hramul Înălțarea Domnului. La acea dată cantor era Dumitru Costin iar parohia număra 315 credincioși[8].
Peste aproape treizeci de ani, în 1896, găsim parohia mai numeroasă, la această dată având 335 credincioși. Biserica este amintită cu același hram, în plus fiind precizat și anul edificării acesteia, 1792. Făcând parte acum din protopopiatul Ipului, parohia avea filie tocmai în Ip, localitatea ce dădea numele protopopiatului, era administrată de către Domițian Cupșia și cantor fiind Gabriel Șinca[9].

După primul război mondial, mai exact în anul 1919, situația parohiei și a bisericii se prezenta astfel: biserica, de lemn, în stare bună, avea acoperișul făcut din șindrilă, și acesta în stare bună. Edificiul avea boltitură și era padimentată cu scânduri, fiind asigurată contra focului la Reuniunea de Asigurare Diecezană Gherla. Preotul avea șapte rânduri de veșminte bisericești, toate în stare bună. Potirul și discul erau din argint. Din același material era făcut și recipientul în care se ținea sfânta cuminecătură. Vasele în care erau păstrate "sfântul mir și olei erau din glaje și plev (sticlă și tablă)", toate acestea ținându-se în stare bună. Pe teritoriul parohiei se aflau două răstigniri, amândouă fără fundație de susținere dar în stare bună, înconjurate cu un mic gard de protecție. Parohia, care făcea parte tot din protopopiatul Ip, era administrată de către preotul Ioan Bruchental[10].
În anul 1941 este finalizată noua biserică de zid a satului, cu același hram ca și a vechii biserici de lemn[11]. După construirea acestei biserici, vechea biserică de lemn de pe deal și-a pierdut încetul cu încetul rolul în viața comunității. Într-un proces verbal de constatare și evaluare încheiat în anul 1948 de către primăria comunei Leșmir, județul Sălaj, vechea biserică de lemn din Porț, zidită - conform acestui document - la anii 1740-1750, valora circa 70.000 lei[12].
După 1989, o parte din locuitorii acestui sat care formau comunitatea greco-catolică, în lipsa unui lăcaș de cult, au reparat biserica, înlocuindu-i acoperișul, pentru a o face potrivită pentru desfășurarea slujbelor religioase[13].
Trăsături


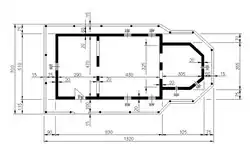
Biserica, de dimensiuni modeste, păstrează planul tradițional dreptunghular (lung de aprox. 8,3 m și lat de aprox. 5 m) la care se adaugă spre răsărit, absida altarului decroșată, poligonală, lungă de aprox. 3,25 m. Întreg edificiul bisericii este înconjurat de un pridvor, ceva mai îngust în partea din spate (latura de nord a bisericii) față de latura de sud a bisericii, unde acesta are o lățime de aprox. 1 m. Diferența este explicabilă, întrucât latura sudică adăpostește și intrarea în biserică. Construcția este înconjurată de un brâu decorativ, simplu amplasat în partea mediană a pereților. Intrarea în biserică este tratată cu o grijă aparte. Partea superioară a intrării este rotunjită iar foaia ușii este formată din stânduri prinse cu cuie de fierărie. Ușa este încadrată de decorațiuni sculptate de forma unei frânghii.
Interiorul, împărțit în cele trei încăperi consacrate: pronaos, naos și altar păstrează fragmente din decorul pictat. Trecerea din pronaos în naos se face prin intermediul unei uși ce are partea superioară rotunjită, asemănătoare cu intrarea. Pe ancadramentul acestei intrării se regăsește înscris anul ce datează biserica. Peretele ce desparte pronaosul de naos are prevăzute orificii dreptunghiulare pentru a înlesni urmărirea vizuală a slujbei. Întrucât trecerea dintre cele două încăperi nu se află poziționată exact pe axul bisericii, cele două spații regăsite în stânga și dreapta intrării în naos sunt de dimensiuni diferite, cel dinspre latura de nord fiind mai mare. Situații în care intrarea în naos se află ușor deviată spre latura de sud se mai întâlnesc și la bisericile de lemn din Nadiș și Stâna, ultima aflată în cadrul Mănăstirii Bic de lângă Șimleu Silvaniei. Naosul, acoperit de o boltă semicilindrică, prin dimensiunile sale: lungime 4.8 m, lățime 3,25 m și înălțime 4,55 m se apropie de forma unui cub. Trecerea spre absida altarului se face prin doar două uși, una pentru preot iar alta pentru diacon. Altarul este acoperit de o boltă semicilindrică ce se termină în partea de est prin intermediul a trei fâșii curbe. Pronaosul bisericii, înalt de aprox. 2,2 m este tăvănit.
Întreg edificiul este protejat de un acoperiș cu două secțiuni: prima - ce acoperă pronaosul și naosul ajunge la înălțimea de 6,55 m, iar cea de-a doua, mai scundă, adăpostește absida altarului. Deasupra pronaosului se află turnul clopotniță. Acesta este relativ scund, de aprox. 11,7 m. Galeria turnului, deschisă, este acoperită de fleșa turnului, ce se termină cu o cruce.
Ceea ce deosebește această biserică de restul bisericilor de lemn din zonă este pictura. Programul iconografic păstrează linia tradițională, în tindă fiind regăsită Pilda Fecioarelor, din această compoziție păstrându-se mai bine grupul celor cinci fecioare înțelepte. Pe peretele de nord și pe cel de răsărit sunt reprezentate sfinte mucenițe precum Sf. Iuliana, Sf. Anastasia, Sf. Maria Magdalena, Sf. Salomia sau Sf. Ioana. Bolta semicilindrică a naosului fost decorată cu câteva medalioane în care sunt prezentate: Sfânta Treime, Mielul ce poartă steagul, Patriarhul Avraam dar și Pilda Pelicanului. În părțile laterale ale bolții naosului au fost redați Evanghelistul Luca, Sf. Proroc Iacov, Evanghelistul Matei, Sf. Proroc Ilie precum și alte scene care, datorită stării de degradare nu pot fi recunoscute. Absida altarului este decorată cu portrete de sfinți părinți: Sf. Spiridon, Sf. Silvestru, Sf. patriarh Alexandru sau Sf. patriarh Macarie. Bolta absidei este decorată cu imaginea porumbelului, simbolul Sf. Duh. Spațiile dintre imagini au fost completate cu decorații vegetale, realizate într-o cromatică dominată de culori vii precum galbenul, roșu sau verdele, specifice canoanelor barocului[14].
În cazul iconostasului bisericii se remarcă faptul că a fost amplasat peste unul mai vechi, acest eveniment având loc probabil în secolul al XIX-lea[14]. Stilul picturii iconostasului trădează experiența unui pictor format și venit din ambianța culturală central europeană[14]. În partea superioară a iconostasului sunt redați apostolii, grupați câte trei, spațiul central fiind dominat de către icoana ce îl prezintă pe Isus Cristos stând pe tron. În registrul următor sunt redate evenimente importante din calendarul bisericesc: "Nașterea Precistei", "Aducerea în biserică", "Nașterea lui Isus", "Botezul Domnului", "Bunavestire", "Duminica Floriilor", "Învierea lui Hristos", "Înălțarea Domnului", "Icoana cea nefăcută de mână", "Pogorârea Duhului", "Schimbarea la față" și "Adormirea precistei"[15].
Note
- Ioan Godea - Monumente de Arhitectură Populară din Nord-Vestul României, Vol.I, Biserici de lemn din Zona Barcău-Crasna, Muzeul Țării Crișurilor, Oradea, 1972, pag. 50
- Ioana Cristache-Panait - Monumente istorice bisericești din Eparhia Ortodoxă Română a Oradei. Biserici de lemn, Oradea, 1978, pag. 376
- Comisia Națională a Monumentelor Istorice | Ministerul Culturii, www.cultura.ro
- Dionisie Stoica și Ioan P. Lazar - Schița Monografică a Sălagiului, Editura Victoria, Șimleu-Silvaniei, 1908, pag. 263
- Petri Mor - Szilágy vármegye monographiája, 1902, vol. IV, pag. 260
- Ioan Godea - Monumente de Arhitectură Populară din Nord-Vestul României, Vol.I, Biserici de lemn din Zona Barcău-Crasna, Muzeul Țării Crișurilor, Oradea, 1972, pag. 49 - vezi și C. Suciu - Dicționar istoric al locaităților din Transilvania, Ed. Academiei RPR, 1967.
- Monumente istorice bisericești din Eparhia Ortodoxă Română a Oradei. Biserici de lemn. Oradea: Editura Episcopiei Ortodoxe Române a Oradei. 1978, pag. 376
- Schematismus Venerabilis Cleri Neo-Erecta Diocesis Szamos-Ujvariensis Gr. Rit. Cath. Pro Anno a Christo Nato 1967, Gherla, pag. 117
- Schematismus Cleri Diocesis SzamosUjvariensis Graeci Ritus Catholicorum Pro Anno a Christo Nato 1996, Gherla, pag. 142
- Arhivele Naționale - Direcția Județeană Cluj - Fond Ep. Greco-Catolică de Cluj-Gherla, anul 1920, doc. nr. 2662/1920, pag. 45
- Anuarul Episcopiei Sălajului, Editura Episcopiei Sălajului, Zalău, 2008, pag. 144
- Arhiva parohiei greco-catolice Porț
- Pr. Ionuț Costaș - Biserica de lemn Înălțarea Domnului din Porț, comuna Marca în Bisericile de lemn din Sălaj, Editura Silvania, Zalău, 2008, pag. 144
- Ioana Cristache-Panait - Monumente istorice bisericești din Eparhia Ortodoxă Română a Oradei. Biserici de lemn, Oradea, 1978, pag. 373
- Ioana Cristache-Panait - Monumente istorice bisericești din Eparhia Ortodoxă Română a Oradei. Biserici de lemn, Oradea, 1978, pag. 374
Bibliografie
- Studii monografice
- Cristache-Panait, Ioana (). „Biserica Înălțarea Domnului din Porț”. Monumente istorice bisericești din Eparhia Ortodoxă Română a Oradei. Biserici de lemn: 373–376, Oradea.
- Studii regionale
- Cristache-Panait, Ioana (). „Bisericile de lemn din Sălaj”. Buletinul Monumentelor Istorice. 1971 (1): 31–40.
- Ghergariu, Leontin (). „Meșterii construcțiilor monumentale de lemn din Sălaj”. AMET. 1971-73: 255–273, Cluj.
- Godea, Ioan (). Biserici de lemn din România (nord-vestul Transilvaniei). București: Editura Meridiane. ISBN 973-33-0315-1.
Vezi și
Hărți vechi unde este marcată poziția bisericii de lemn

Satul Porț, în harta din anul 1869 
Satul Porț, în harta din anul 1884
Imagini din interior

Bolta naosului, primul medalion: pilda Pelicanului, al doilea medalion: Patriarhu Abraam 
Bolta naosului: Sfânta Treime 
Bolta naosului: Sf. Proroc Iacob şi Sf. Ev. Matei 
Detaliu iconostas 
Pictura altarului: Sfânt Patriarh 
Pictura altarului: Sfinți Patriarhi 
Dosul tâmplei 
Dosul tâmplei - detaliu 
Pronaos - Pilda fetelor înțelepte 
Sfinte pictate în pronaos 
Partea superioară a portalului interior 
Iconostasul 
Intrările în absida altarului 
Peretele despărţitor dintre naos şi pronaos. Vedere din naos 
Vedere spre absida altarului 
În pronaos 
Trecerea din pronaos către naos 
Biserica de lemn pe deal iar în vale noua biserică de zid, 2005
Imagini din exterior

Intrarea în biserică 
Absida altarului 
Biserica, văzută din sud-vest 
Latura de vest a bisericii 
Turnul clopotniță 
Vedere de ansamblu 
Vedere din sud 
Vedere din sud-vest 
Latura de nord a bisericii 
Îmbinare 
Pridvorul, în dosul altarului 
Console