Biserica de lemn din Bobota
Biserica de lemn din Bobota s-a aflat în localitatea Corni din județul Maramureș până în jurul anului 1975, când a fost demolată. Biserica de lemn fusese adusă în anul 1868 din satul Bobota, Sălaj. Ea putea data din secolul 18.

Biserica de lemn din Bobota, SJ mutată la Corni, MM. Foto 1972

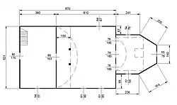
Planul bisericii de lemn din Bobota, județul Sălaj, mutată la Corni, județul Maramureș
Note
Bibliografie
- Studii regionale
- Iurașciuc, I. și Șainelic, Ș. (). „Monumente de arhitectură populară: bisericile de lemn din Zona Codru”. Satu Mare, Studii și Comunicări: 165–203 +pl. XIX–XXVII.
This article is issued from Wikipedia. The text is licensed under Creative Commons - Attribution - Sharealike. Additional terms may apply for the media files.